Bureau à louer - 6805 Mezzovico
Pourquoi vous aimerez ce bien
Grand espace lumineux
Bureaux modulables
Visibilité pratique depuis la rue
Organiser une visite
Réserver une visite aujourd'hui !
Espace commercial/bureaux à louer - mezzovico
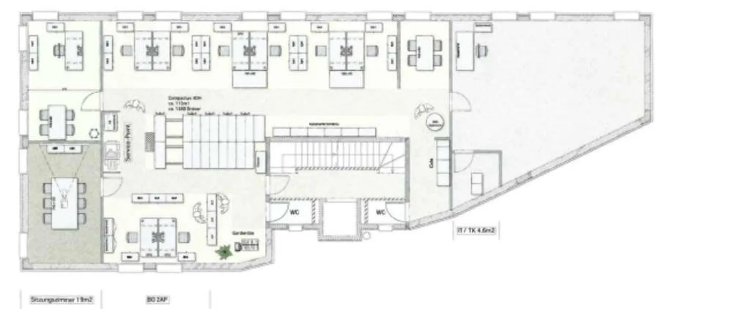
Disponible à la location, une grande surface d'environ 245 m² sur un seul niveau, idéale pour un usage de bureau ou des activités administratives. La zone est parfaitement adaptée aux entreprises, aux bureaux professionnels ou aux activités nécessitant des espaces modulaires et flexibles.
Caractéristiques principales
- Grand espace ouvert lumineux, idéal pour des postes de travail partagés ou modulables.
- Cuisine / coin repas.
- Bureaux modulaires séparables pour créer des environnements indépendan...
Détail des loyers
- Loyer net
- CHF 2’950
- Coûts supplémentaires
- CHF 450
- Total des loyers
- CHF 2’950
Détails du bien
- Disponible à partir de
- Sur accord




