1 / 10

Immeuble industriel à louer - Rue Des Sablières 4, 1242 Satigny

252 m²
CHF 4’200.-
CHF 200 m² / year

Pourquoi vous aimerez ce bien

Agencements de bureaux flexibles

Hauteur sous plafond de 7m

20 places de parking disponibles

Organiser une visite

Réserver une visite aujourd'hui !

CBRE Genève

Surfaces de production et de bureaux à louer à satigny

Locaux aménagés

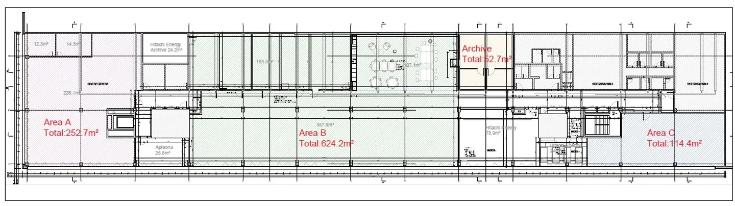
991 m2 de bureaux divisibles comme suit : 252,7 m2, 624,2 m2, 114,4 m2

755 m2 de surfaces de production/stockage

Ascenseur/Monte-charges

Blocs sanitaires avec douches

1 monte-charge (charge maximale 1'600kg) et 2 monte-charges (charge maximale 3'200kg)

Pont-roulant au rez

Charge utile : 1 tonne

Hauteur au rez : 7m

Sprinkler

Détection incendie

20 places de parking (CHF 2'400.-/unité/an)

Disponibilité après accord

Détails du bien

Disponible à partir de
Sur accord
Surface habitable
252

Agence

CBRE Genève
Ref: 53009.849808
En ligne depuis
15/10/2025
il y a 5 jours

Localisation

Rue Des Sablières 4, 1242 Satigny

Sources