Appartement à louer - Via Sut Curt 9, 7402 Bonaduz
Pourquoi vous aimerez ce bien
Grand patio de jardin couvert
Cuisine cosy avec bar
Espace salon lumineux
Organiser une visite
Réserver une visite avec Giubbini aujourd'hui !
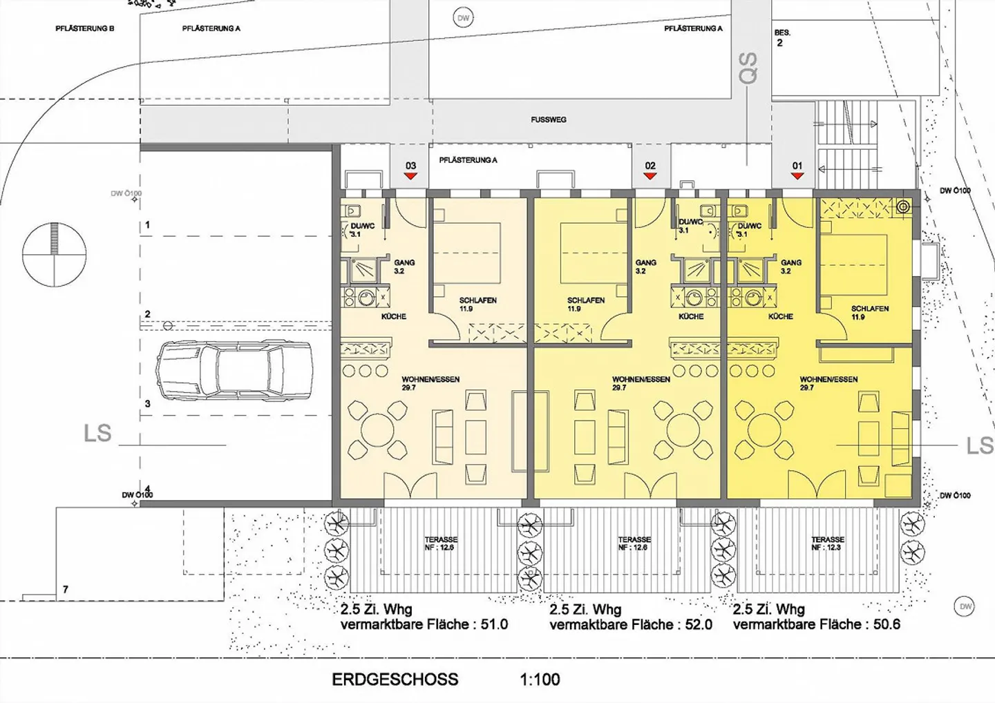
Appartement 2,5 pièces
L'appartement est situé dans un endroit ensoleillé dans un immeuble de plusieurs familles avec neuf appartements.
L'appartement dispose d'une petite cuisine avec un bar, d'un grand salon, d'une chambre, d'une entrée et d'une douche/WC. Devant l'appartement, il y a un grand espace de jardin couvert.
Une place de parking dans le garage souterrain peut être louée pour 100 Fr.
Détail des loyers
- Loyer net
- CHF 1’250
- Coûts supplémentaires
- CHF 100
- Total des loyers
- CHF 1’250
Détails du bien
- Disponible à partir de
- Sur accord
- Pièces
- 2.5
- Surface habitable
- 50 m²
- Étage
- Rez
- Étages du bâtiment
- 3



