Appartement meublé à louer - 1201 Genève
Pourquoi vous aimerez ce bien
Luminaire avec vue dégagée
Cuisine entièrement équipée
Proche du lac Léman
Organiser une visite
Réserver une visite avec Cyrielle aujourd'hui !
À louer - Appartement meublé de 2,5 pièces à Pâquis, Genève
Chez LCR, nous ne facturons pas de frais d'agence pour soumettre votre candidature pour l'un de nos biens. Cependant, nous garantissons un suivi attentif par la direction ou le propriétaire.
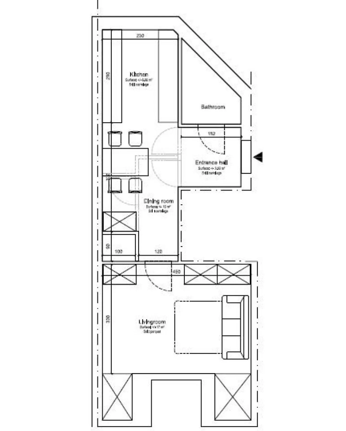
50 m² - 5ème et dernier étage - Disponible à partir du 1er mars 2026
Dans un secteur calme et recherché de Pâquis, à la Rue de Zurich 32 (1201 Genève), cet appartement meublé de 2.5 pièces offre un espace de vie idéal au cœur de la ville, à quelques pas du lac Léman et des transports en commun.
Description de l...
Détails du bien
- Disponible à partir de
- Sur accord
- Pièces
- 2.5
- Surface habitable
- 50 m²
- Étage
- 5ème
- Étages du bâtiment
- 5




