Maison individuelle à vendre - 7270 Davos Platz
Pourquoi vous aimerez ce bien
Espace de vie indépendant
Grandes zones extérieures
Vues imprenables sur les montagnes
Organiser une visite
Réserver une visite avec Damian aujourd'hui !
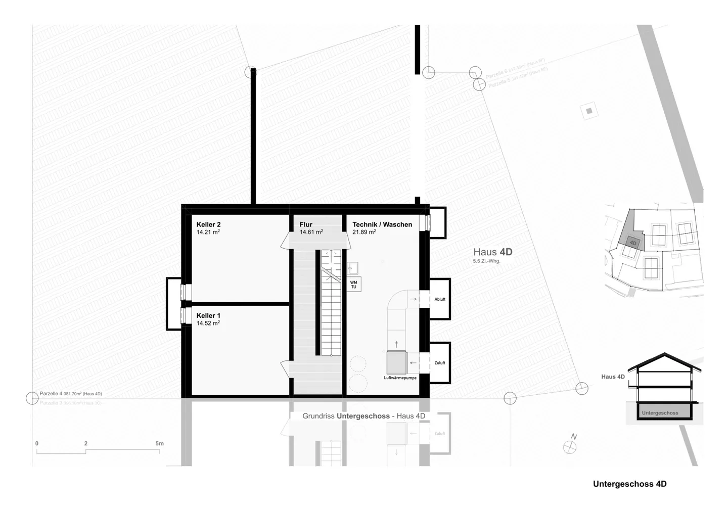
Maison semi-détachée de 5,5 pièces comme résidence principale de haute qualité (3c) à davos wiesen
La Siedlung MARIELLA
La conception de la Siedlung MARIELLA est conçue pour une autonomie maximale.
Chaque maison semi-détachée se compose de deux unités de 5,5 pièces chacune. Une infrastructure de maison indépendante, des pièces annexes généreuses et le propre terrain avec un stationnement confortable garantissent l'indépendance et l'espace pour une conception individuelle.
La Siedlung se compose des types de maisons <> (Maison 1A - 4D) et <> (Maison 5E - 8H). La construction de la Sie...
Détails du bien
- Disponible à partir de
- Sur accord
- Pièces
- 5.5
- Année de construction
- 2026
- Surface du terrain
- 396 m²



