Maison individuelle à vendre - 7270 Davos Platz
Pourquoi vous aimerez ce bien
Infrastructure de maison indépendante
Espaces extérieurs spacieux
Espaces de vie personnalisables
Organiser une visite
Réserver une visite avec Damian aujourd'hui !
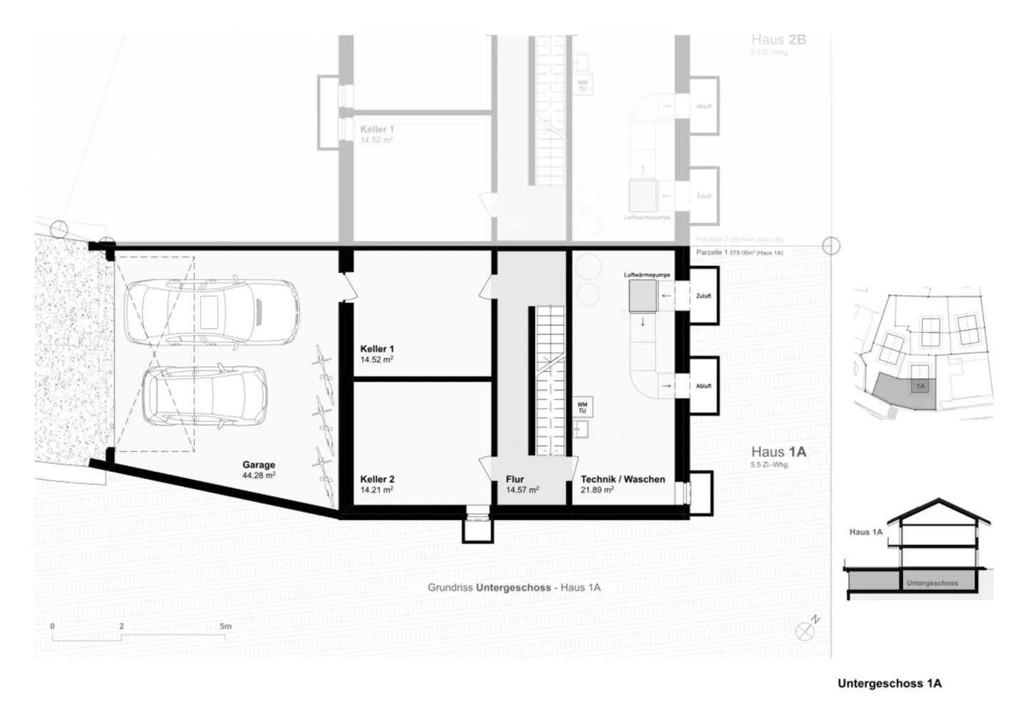
Maison semi-détachée de 5,5 pièces comme résidence principale de haute qualité (1A) à Davos Wiesen
L'implantation MARIELLA
Le concept de l'implantation MARIELLA est conçu pour une autonomie maximale.
Chaque maison semi-détachée se compose de deux unités de 5,5 pièces chacune. Une infrastructure de maison indépendante, des pièces annexes généreuses et le propre terrain avec un stationnement confortable garantissent l'indépendance et l'espace pour une conception individuelle.
L'implantation se compose des types de maisons "Jardin" (Maison 1A - 4D) et "Vue" (Maison 5E - 8H). La construction de l'im...
Détails du bien
- Disponible à partir de
- Sur accord
- Pièces
- 5.5
- Salles de bain
- 3
- Année de construction
- 2026
- Surface du terrain
- 578 m²



