Maison jumelle à vendre - 7000 Chur
Pourquoi vous aimerez ce bien
Vue imprenable sur la ville
Finition moderne de qualité
Parking couvert pour 3 voitures
Organiser une visite
Réserver une visite avec Marijana aujourd'hui !
Confort de vie dans un emplacement privilégié
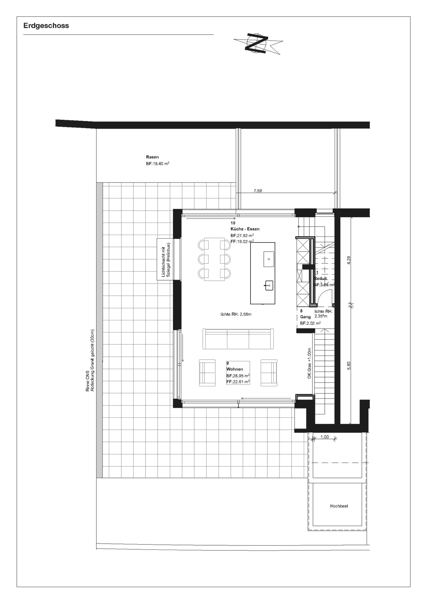
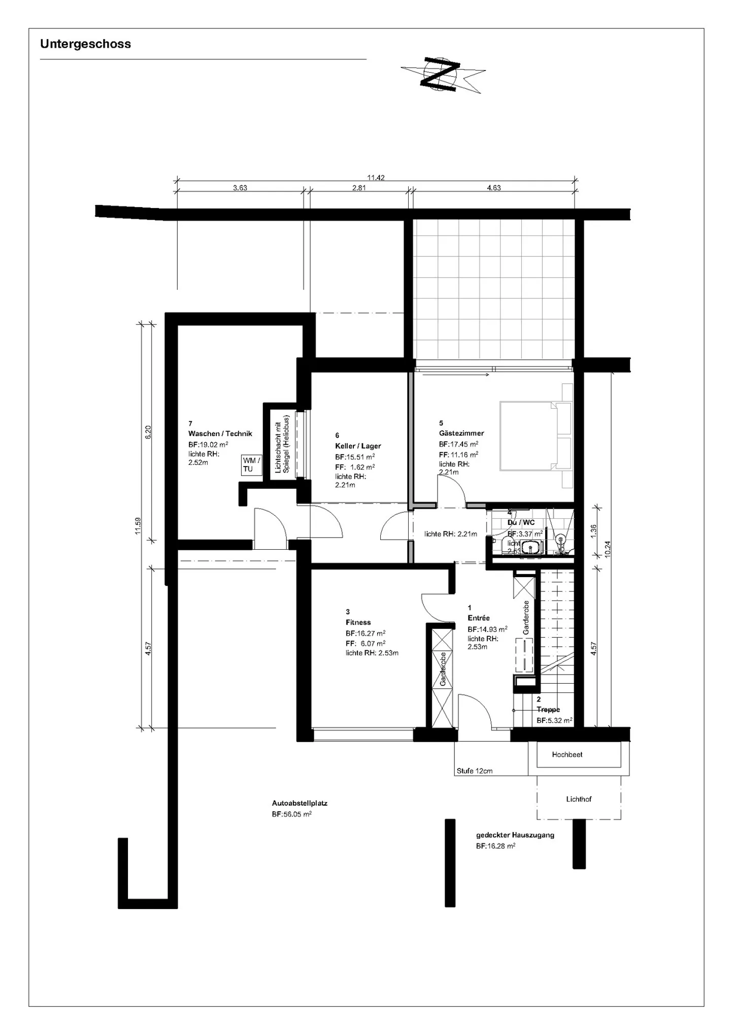
Une résidence de rêve dans l'emplacement le plus recherché de Chur ! Cette maison jumelée de 6,5 pièces offre non seulement beaucoup d'espace pour votre famille, mais aussi une vue imprenable sur la ville. La généreuse surface habitable et les pièces annexes supplémentaires répondent à de nombreux souhaits de logement.
À l'intérieur, vous trouverez un ameublement moderne et de haute qualité, parfaitement adapté aux besoins de votre famille. Avec un total de 5 chambres et 3 salles de bains, il y ...
Détails du bien
- Disponible à partir de
- Sur accord
- Pièces
- 6.5
- Année de construction
- 2012
- Surface habitable
- 220 m²
- Surface du terrain
- 248 m²




