Maison individuelle à vendre - Hauptstrasse 1a, 7494 Davos Wiesen
Pourquoi vous aimerez ce bien
Espace de vie indépendant
Grand espace extérieur
Vues imprenables sur les montagnes
Organiser une visite
Réserver une visite avec Damian aujourd'hui !
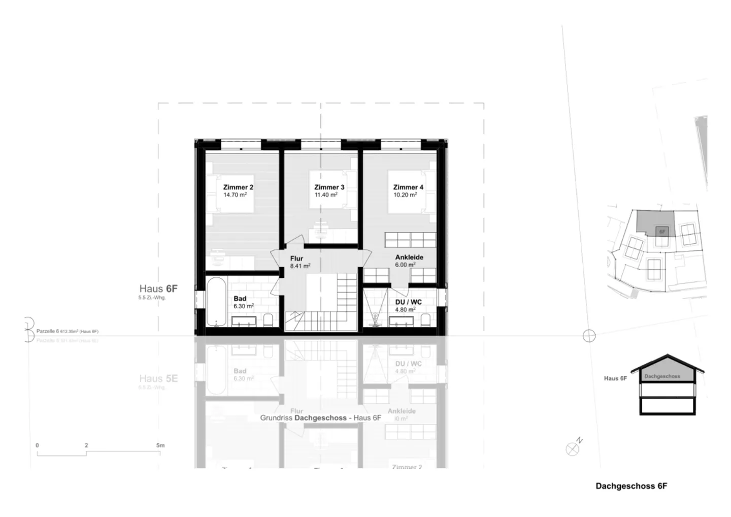
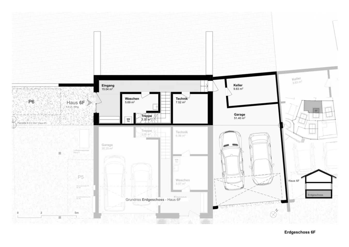
Maison semi-détachée de 5,5 pièces comme résidence principale de haute qualité (6f) à davos wiesen
La résidence MARIELLA
Le concept de la résidence MARIELLA est conçu pour une autonomie maximale.
Chaque maison semi-détachée se compose de deux unités de 5,5 pièces chacune. Une infrastructure de maison indépendante, des pièces annexes généreuses et le propre terrain avec un stationnement confortable garantissent l'indépendance et l'espace pour une conception individuelle.
La résidence se compose des types de maisons <> (Maison 1A - 4D) et <> (Maison 5E - 8H). La construction de la rési...
Détails du bien
- Disponible à partir de
- Sur accord
- Pièces
- 5.5
- Année de construction
- 2026
- Surface du terrain
- 612 m²


