Immeuble mixte à vendre - 1950 Sion
Pourquoi vous aimerez ce bien
Finitions personnalisables incluses
Grand atelier et espace bureau
Emplacement privilégié près autoroute
Organiser une visite
Réserver une visite avec Gaëlle aujourd'hui !
Immeuble mixte 1 pièce
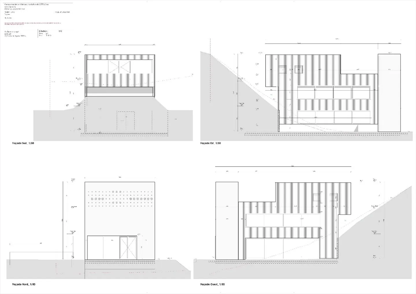
Halle industrielle & commerciale en construction à Sion
Sion - Halle industrielle & commerciale en construction, finitions au gré des acquéreurs
Hermès Immobilier vous propose une halle industrielle à proximité des accès autoroutiers dans un quartier industriel et commercial en plein développement de la ville de SION.
Rare à la vente, cette grande halle commerciale sur 3 niveaux sera mise hors d'eau/d'air pour décembre 2024.
Zones d'activités économiques (zones industrielles / zones ar...
Détails du bien
- Disponible à partir de
- Sur accord
- Pièces
- 1



