Appartement à vendre - Tramstrasse, 5034 Suhr
Pourquoi vous aimerez ce bien
Accès par ascenseur sans barrières
Cuisine moderne avec appareils
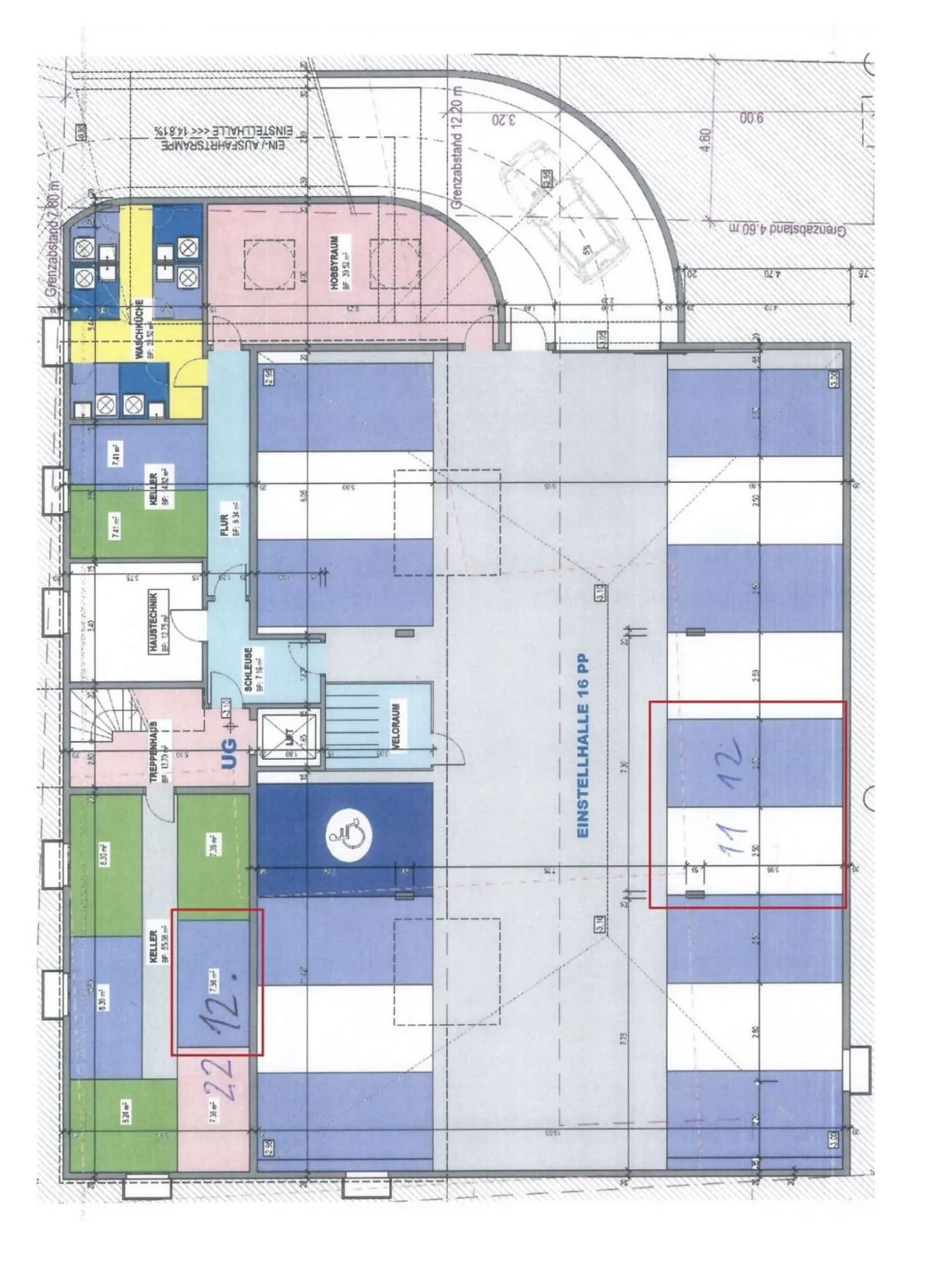
Deux places de garage
Organiser une visite
Réserver une visite aujourd'hui !
4 ½ pièces avec balcon au 1er étage et 2 places de parking souterrain
Nous vendons exclusivement au nom de la propriétaire cet appartement magnifique au centre. L'immeuble comprend 8 appartements.
Bel appartement lumineux du premier propriétaire avec balcon, cave et 2 places de parking souterrain à vendre. L'ascenseur va du garage souterrain à côté de l'appartement. L'accès par l'ascenseur est sans obstacle sauf pour un petit seuil.
En moins de 5 minutes, vous pouvez rejoindre l'autoroute en voiture. Très bonne connexion.
Programme des pièces :
Entrée avec vestiaire
WC...
Détails du bien
- Disponible à partir de
- Sur accord
- Pièces
- 4.5
- Salles de bain
- 1
- Année de construction
- 2007
- Étage
- Rez




