Appartement à vendre - Rue De La Roulema, 1632 Riaz
Pourquoi vous aimerez ce bien
Jardin privatif paisible
Grande terrasse pour se détendre
Équipements de cuisine modernes
Organiser une visite
Réserver une visite aujourd'hui !
Appartement ppe
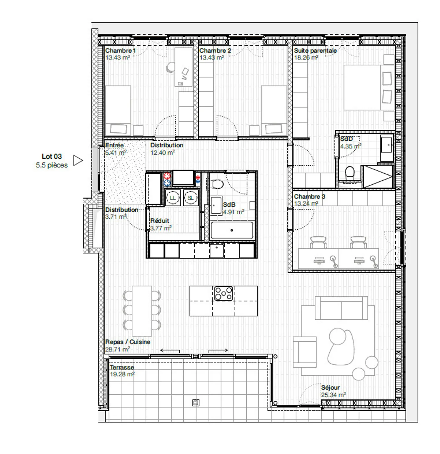
A vendre à Riaz : Magnifique appartement de 5.5 pièces au rez-de-chaussée
L'appartement se compose comme suit :
Entrée/hall
Salle-de-bains (4.91 m2)
Réduit Cuisine/salle à manger (28.71 m2)
Séjour (25.34 m2)
3 chambres (13.43 m2 / 13.43 m2 / 13.24 m2)
1 chambre parentale avec salle-de-bain (18.26 m2 / 4.35 m2)
Terrasse (19.28 m2)
Jardin privatif (217.45 m2)
Cave (8.86 m2)
Un parking souterrain complète ce projet. Le prix est de CHF 35'000.- l'unité.
Livraison : avril 2027 environ
BUDGETS
Appare...
Détails du bien
- Disponible à partir de
- Sur accord
- Pièces
- 5.5
- Salles de bain
- 2
- Année de construction
- 2025
- Surface habitable
- 150.6 m²
- Surface utilisable
- 164.7 m²
- Étage
- Rez




