Appartement à vendre - Rue De La Roulema, 1632 Riaz
Pourquoi vous aimerez ce bien
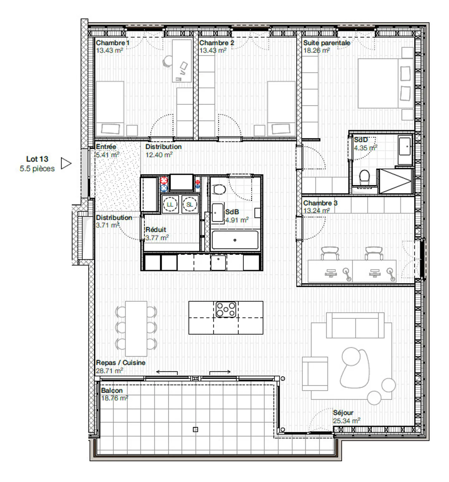
Cuisine spacieuse de 28.71 m²
Balcon de 18.76 m² pour se détendre
Parking souterrain disponible
Organiser une visite
Réserver une visite aujourd'hui !
Appartement ppe
A vendre à Riaz : Magnifique appartement de 5.5 pièces au 1er étage
L'appartement se compose comme suit :
Entrée/hall
Réduit
Salle-de-bains (4.91 m2) Cuisine/salle à manger (28.71 m2)
Séjour (25.34 m2)
3 chambres (13.43 m2 / 13.43 m2 / 13.24 m2)
1 chambre parentale avec salle-de-bains (18.26 m2 / 4.35 m2)
Balcon (18.76 m2)
Cave (8.92 m2)
Un parking souterrain complète ce projet. Le prix est de CHF 35'000.- l'unité.
Livraison : avril 2027 environ
BUDGETS
Appareils sanitaires
Budget : CHF 12'500...
Détails du bien
- Disponible à partir de
- Sur accord
- Pièces
- 5.5
- Salles de bain
- 2
- Année de construction
- 2025
- Surface habitable
- 150.6 m²
- Surface utilisable
- 164.4 m²
- Étage
- 1er




