Appartement à vendre - Pezzastrasse, 7563 Samnaun Dorf
Pourquoi vous aimerez ce bien
Terrasses spacieuses pour se détendre
Espace de vie lumineux avec vue
Norme Minergie écologique
Organiser une visite
Réserver une visite avec Fadrina aujourd'hui !
Allegria - vie moderne avec une vue de rêve sur le panorama montagneux
Vie moderne dans un emplacement idyllique avec une vue fantastique sur le monde montagneux (résidence principale)
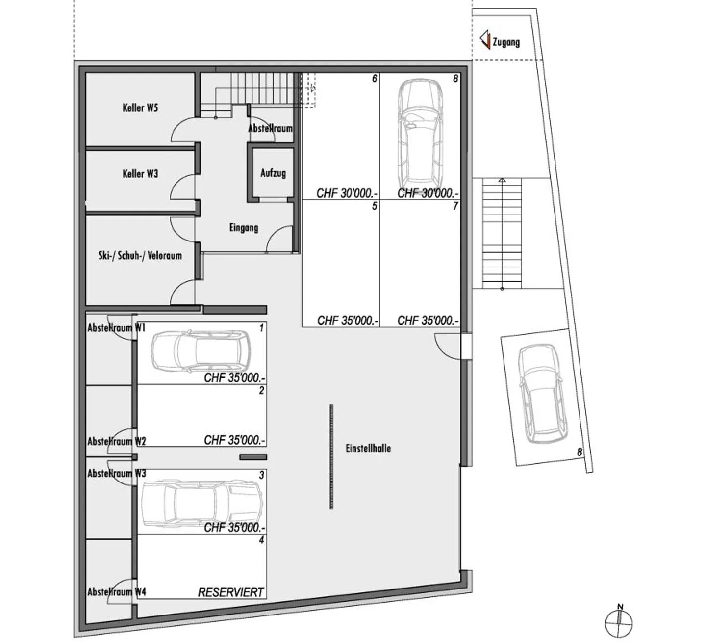
Dans un emplacement élevé et ensoleillé avec une vue magnifique sur la vallée et le monde montagneux, un bâtiment résidentiel moderne et architectoniquement bien conçu avec cinq appartements en copropriété (résidences principales) est en cours de construction. La construction sera bientôt achevée et les appartements seront prêts à être occupés sous peu. Comme point fort du projet Alle...
Détails du bien
- Disponible à partir de
- Sur accord
- Pièces
- 3.5
- Année de construction
- 2023
- Surface habitable
- 91 m²
- Étage
- 1er
- Étages du bâtiment
- 3



