Attique à vendre - Pezzastrasse, 7563 Samnaun Dorf
Pourquoi vous aimerez ce bien
Terrasse spacieuse avec vue
Espace de vie lumineux
Standard Minergie écologique
Organiser une visite
Réserver une visite avec Fadrina aujourd'hui !
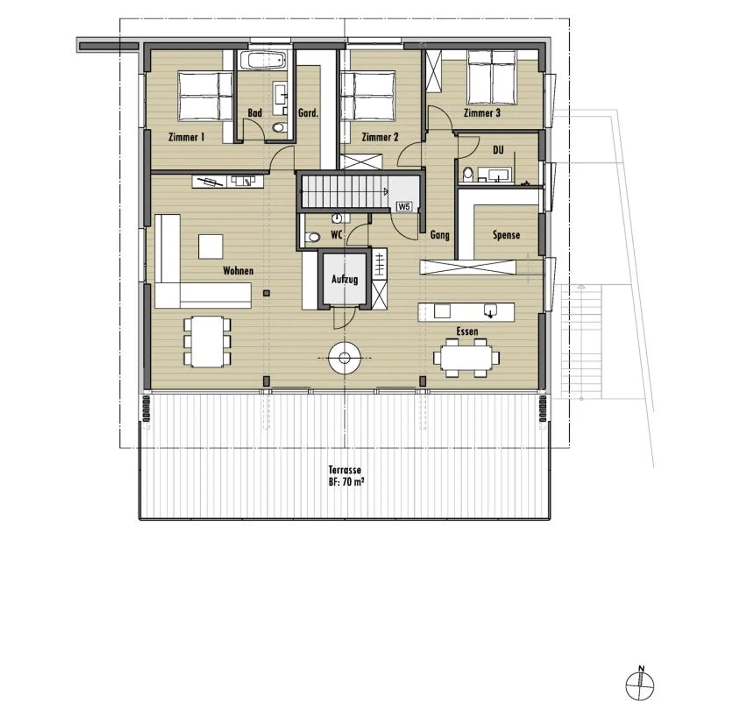
Allegria - Appartement en Attique de Rêve avec Grande Terrasse et Vue sur les Montagnes
Vie moderne dans un emplacement idyllique avec une vue fantastique sur le monde montagnard (résidence principale)
Dans un emplacement élevé et ensoleillé avec une vue magnifique sur la vallée et le monde montagnard, un bâtiment résidentiel moderne et architecturally bien conçu avec cinq appartements en copropriété (résidences principales) est en cours de construction. La construction sera bientôt achevée et les appartements seront prêts à être occupés sous peu. Le point fort du projet Allegria pe...
Détails du bien
- Disponible à partir de
- Sur accord
- Pièces
- 4.5
- Année de construction
- 2023
- Surface habitable
- 165 m²
- Étage
- 3ème
- Étages du bâtiment
- 3




