Appartement meublé à vendre - 3906 Saas-Fee
Pourquoi vous aimerez ce bien
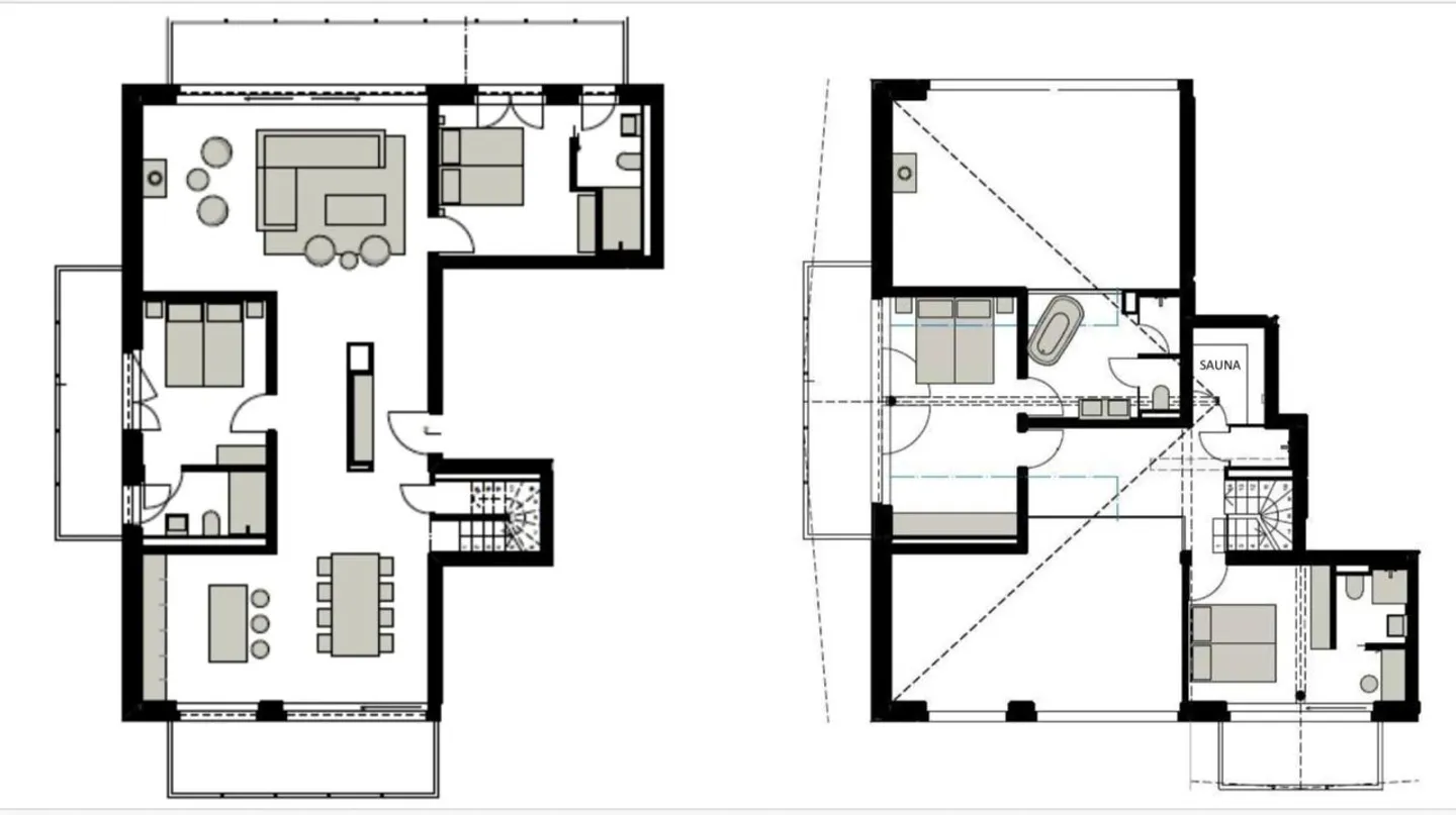
Sauna privé inclus
Cinq balcons ensoleillés
Accès exclusif au spa
Organiser une visite
Réserver une visite avec Lea aujourd'hui !
Appartement de résidence hôtelière avec revenus locatifs à Saas-Fee (Unité BA 42)
Découvrez une opportunité extraordinaire de posséder un appartement de résidence hôtelière entièrement meublé au cœur de Saas-Fee, l'une des stations alpines les plus renommées de Suisse.
Ce appartement de 4 pièces avec sauna privé est intégré dans une résidence hôtelière gérée professionnellement, offrant une combinaison unique de propriété privée, de revenus locatifs et de gestion sans effort. Lorsque l'appartement n'est pas utilisé par le propriétaire, il est loué par l'hôtel, générant des rev...
Détails du bien
- Disponible à partir de
- Sur accord
- Pièces
- 5.5
- Surface habitable
- 210 m²
- Étage
- 4ème




