Appartement à vendre - 1207 Genève
Pourquoi vous aimerez ce bien
Séjour lumineux
Cuisine semi-ouverte
Immeuble récemment rénové
Organiser une visite
Réserver une visite avec Frédéric aujourd'hui !
Appartement 2 pièces
Eaux-Vives ? Élégant 2 pièces au coeur du quartier
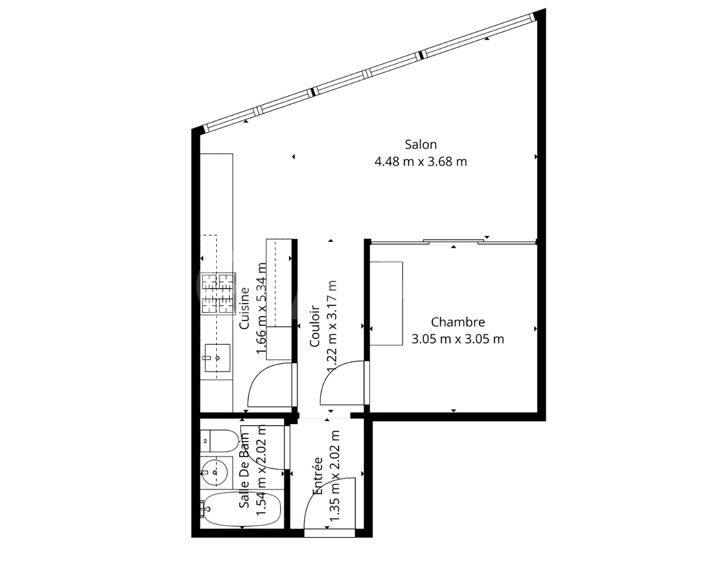
Idéalement situé au coeur des Eaux-Vives, cet appartement de charme de 47.5 m² PPE occupe le 2? étage d'un immeuble récemment rénové, alliant confort et cachet urbain.
L'espace se compose d'un séjour lumineux, d'une cuisine semi-ouverte entièrement équipée, d'une chambre séparée, et d'une salle de bains avec baignoire.
L'immeuble, parfaitement entretenu, a bénéficié de rénovations majeures : façades et isolation, hall d'entrée, communs, double v...
Détails du bien
- Disponible à partir de
- Sur accord
- Pièces
- 2
- Salles de bain
- 1
- Surface habitable
- 48 m²



