Maison en terrasse à louer - 8200 Schaffhausen
Pourquoi vous aimerez ce bien
Espace de vie moderne
Nouveau bâtiment en 2026
Emplacement idéal pour familles
Organiser une visite
Réserver une visite aujourd'hui !
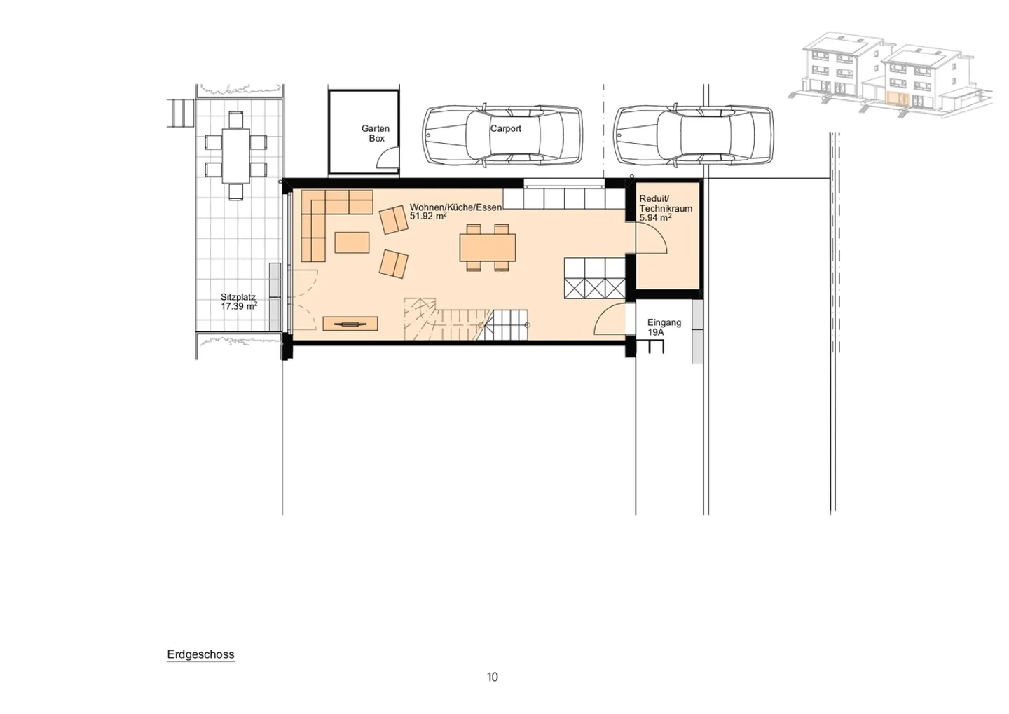
Maison de ville neuve spacieuse de 5,5 pièces à Schaffhouse
Dans un charmant village du canton de Schaffhouse, cette maison de ville de 5,5 pièces offre la combinaison parfaite de confort et de modernité. Le salon invite à la détente, tandis que la cuisine moderne est un lieu d'inspiration. Avec un total de 4 chambres et 2 salles de bains, cette maison offre suffisamment d'espace pour toute la famille. La propriété dispose d'un sous-sol et d'un carport pratique.
La maison de ville sera construite en 2026. Le standard de construction moderne est souligné ...
Détail des loyers
- Loyer net
- CHF 2’950
- Coûts supplémentaires
- CHF 250
- Total des loyers
- CHF 2’950
Détails du bien
- Disponible à partir de
- Sur accord
- Pièces
- 5.5
- Année de construction
- 2026
- Surface habitable
- 150 m²
- Surface du terrain
- 170 m²



