Maison individuelle à louer - Bolenbergstrasse 65, 8855 Wangen SZ
Pourquoi vous aimerez ce bien
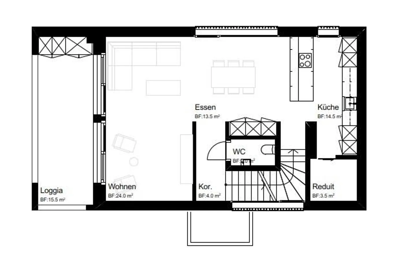
Cuisine ouverte spacieuse
Jardin privé paisible
Vues panoramiques époustouflantes
Organiser une visite
Réserver une visite aujourd'hui !
Maison individuelle moderne avec beaucoup d'intimité
Aimez-vous la nature, la vue sur l'horizon et un mode de vie moderne et nouveau ? Alors vous êtes au bon endroit.
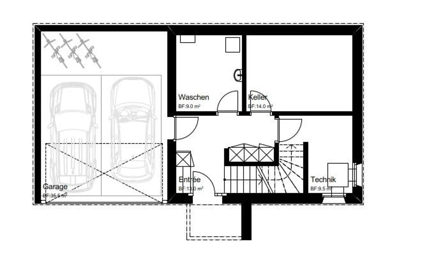
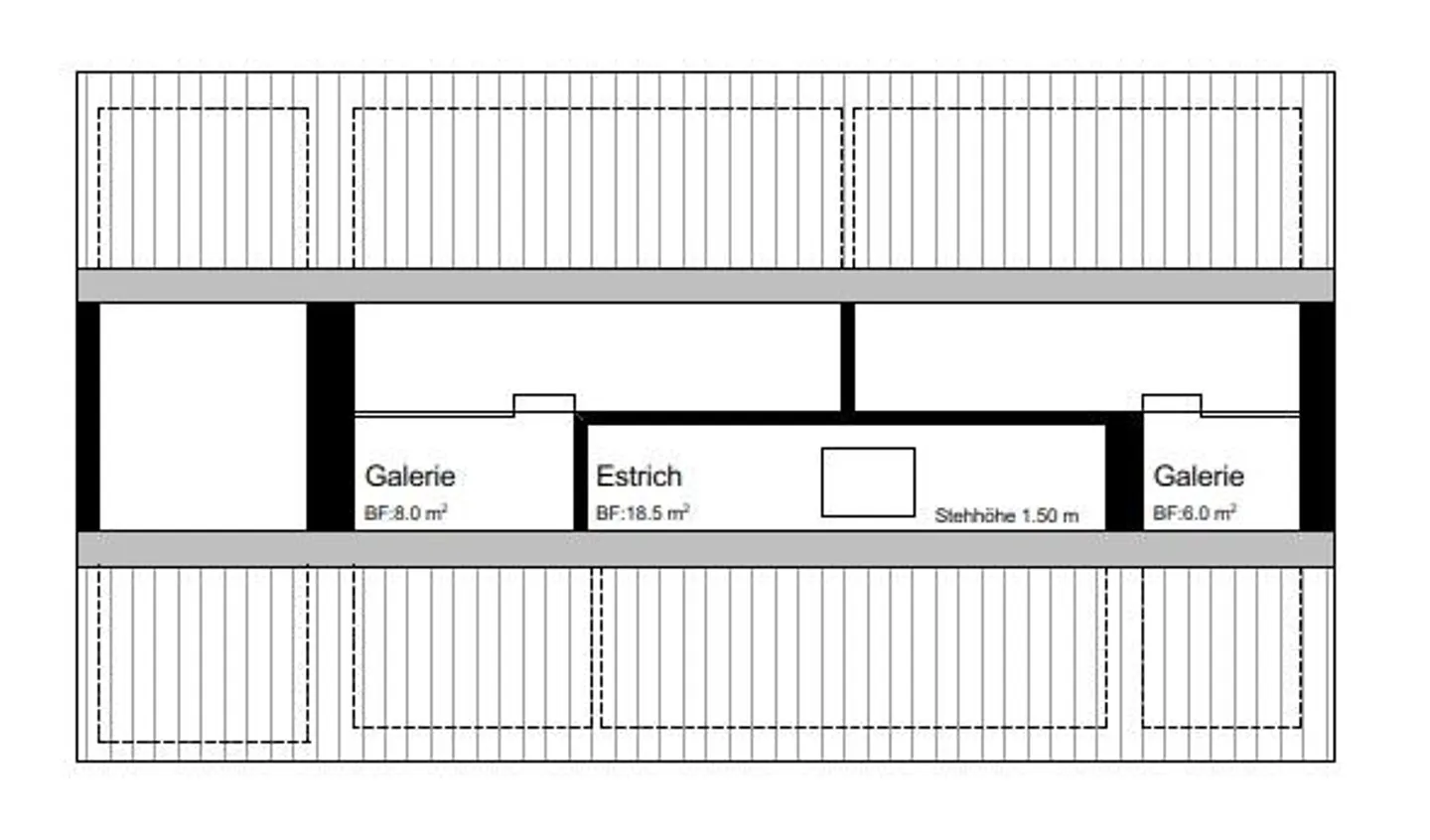
Là où se tenait autrefois un vieux fermier délabré avec une petite grange attenante, se présente aujourd'hui une nouvelle maison individuelle moderne de 4½ pièces en bois avec un garage double, y compris une station de recharge pour voiture électrique et beaucoup d'espace au milieu de la zone agricole. La vie privée, le calme et la détente sont garantis ici, que ce soit sur l'une des ...
Détail des loyers
- Loyer net
- CHF 6’200
- Coûts supplémentaires
- CHF 300
- Total des loyers
- CHF 6’200
Détails du bien
- Disponible à partir de
- Sur accord
- Pièces
- 4.5
- Année de construction
- 2023
- Surface habitable
- 267 m²



