Maison en terrasse à louer - Nörgelbach 12, 8493 Saland
Pourquoi vous aimerez ce bien
Espace extérieur ensoleillé
Retraite ombragée dans le jardin
Système de pompe à chaleur efficace
Organiser une visite
Réserver une visite avec Bez aujourd'hui !
Wohlfühl-refh im schönen zürioberland
Ein Zuhause zum Wohlfühlen – für naturverbundene Menschen
Inmitten der sanften Höhen des Tösstals erwartet Sie dieses liebevoll gepflegte Reiheneinfamilienhaus – umgeben von Natur, Ruhe und viel Raum zum Durchatmen. Hier dürfen Sie ankommen, abschalten und sich einfach wohlfühlen.
Nur wenige Minuten entfernt finden Sie die Dörfer Bauma und Saland, beide mit Einkaufsmöglichkeiten, Bahnhöfen sowie Freizeit- und Sportangeboten. In Bauma steht Ihnen zudem ein Hallenbad zur Verfügung. Die Töss, die in ...
Détail des loyers
- Loyer net
- CHF 2’270
- Coûts supplémentaires
- CHF 130
- Total des loyers
- CHF 2’270
Détails du bien
- Disponible à partir de
- Sur accord
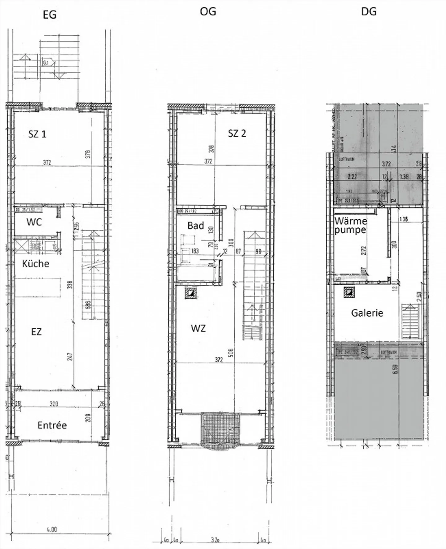
- Pièces
- 4.5
- Année de rénovation
- 2025
- Surface habitable
- 110 m²



