Immeuble mixte à louer - Route De Chavannes-De-Bogis, 1279 Bogis-Bossey
Pourquoi vous aimerez ce bien
Emplacement idéal et visible
Quai de livraison pour camions
Ateliers modulables disponibles
Organiser une visite
Réserver une visite avec maison.work aujourd'hui !
Bâtiment Artisanal neuf
A la jonction entre la route de Divonne et l'autoroute A1, axe principal helvétique, ce bâtiment jouit d'une localisation idéale, tant en terme d'accès que de visibilité.
Ce bâtiment à caractère artisanal et pour la petite industrie offre un environnement de travail qualitatif et moderne.
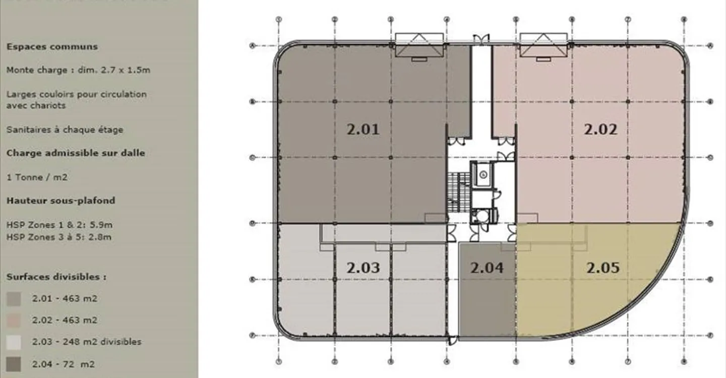
Il dispose notamment de :
- Quai de livraison pour des camions jusqu'à 19 tonnes avec plateforme élévatrice
- Monte charge dimensionné pour des transpalettes qui dessert l'ensemble des n...
Détails du bien
- Disponible à partir de
- Sur accord
- Année de construction
- 2025
- Surface habitable
- 70 m²
- Surface utilisable
- 70 m²



