Immeuble mixte à louer - Rue Porte-d'en-Bas 6, 1635 La Tour-de-Trême
Pourquoi vous aimerez ce bien
Espaces commerciaux lumineux
Bâtiment aux normes Minergie
Parking public disponible
Organiser une visite
Réserver une visite avec maison.work aujourd'hui !
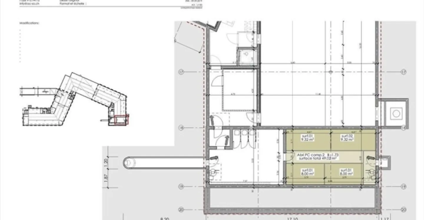
SURFACE COMMERCIALE DE 122 M² À PROXIMITE IMMEDIATE DE COOP
POSSIBILITE DE FINANCEMENT/PARTICIPATION PARTIELLE/TOTALE DES AMENAGEMENTS FINAUX PAR LE PROPRIETAIRE.
SURFACES COMMERCIALES LUMINEUSES AVEC VITRINES A PROXIMITE IMMEDIATE D'UNE SUCCURSALE COOP.
DEUX SURFACES ENCORE EN LOCATION RESPECTIVEMENT D'ENV. 122 m² ET 106 m² SISES AU REZ-DE-CHAUSSÉE.
DESCRIPTION
• Immeuble à 7 minutes des entrées et sorties d'autoroute (5,7 km par route de contournement).
• De nombreux immeubles locatifs dans ...
Détail des loyers
- Loyer net
- CHF 2’435
- Coûts supplémentaires
- CHF 100
- Total des loyers
- CHF 2’435
Détails du bien
- Disponible à partir de
- Sur accord
- Année de construction
- 2018
- Surface habitable
- 122 m²
- Surface utilisable
- 122 m²



