Immeuble mixte à louer - Mittlere Strasse 52, 3600 Thun
Pourquoi vous aimerez ce bien
Charge de sol 500kg/m²
Salle de réunion moderne
Accès direct au monte-charge
Organiser une visite
Réserver une visite avec Wohnplus aujourd'hui !
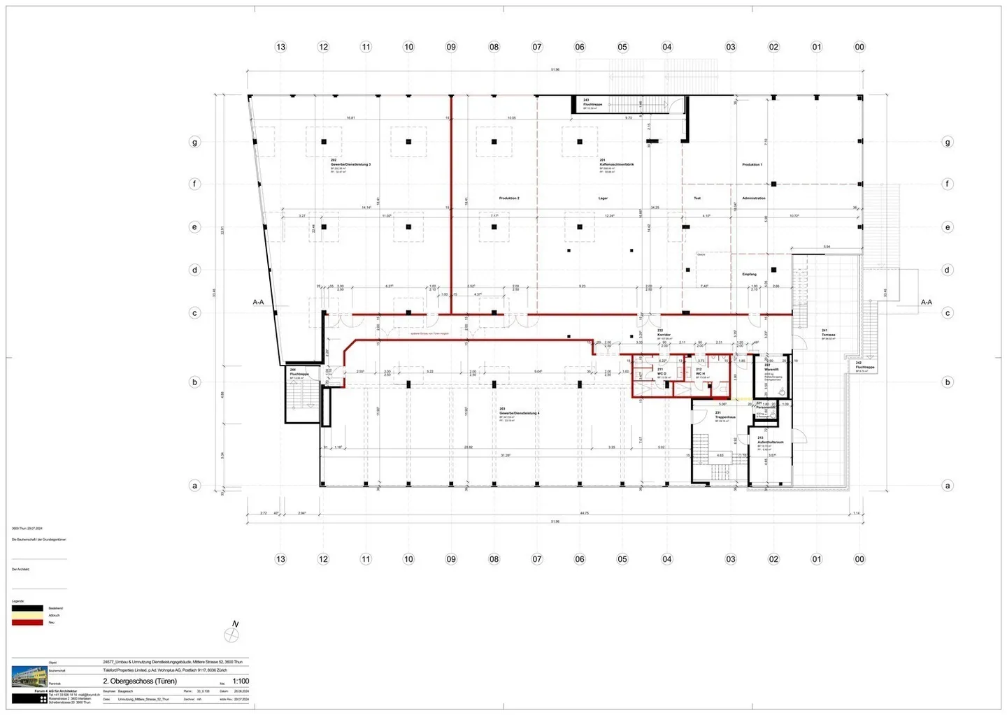
Espace commercial d'environ 590m2 au 2ème étage (surface dans le plan d'étage n° 201 / Nord-Est)
Capacité de charge au sol 500kg/m2
salle de réunion séparée (18 m2) à l'étage
Rampe de chargement avec élévateur disponible au rez-de-chaussée avec accès direct à l'ascenseur à marchandises
Installations WC pour dames et hommes nouvellement créées avec douche à l'étage.
Escalier moderne, nouvellement créé
Parking souterrain
Prix cible : CHF 150.00/m2 plus frais accessoires & TVA.
Places de stati...
Détails du bien
- Disponible à partir de
- Sur accord
- Places de parking extérieures
- 1
- Année de rénovation
- 2024
- Surface habitable
- 590 m²
- Surface utilisable
- 590 m²



