Immeuble mixte à louer - Route De Pré-Bois 1, 1214 Vernier
Pourquoi vous aimerez ce bien
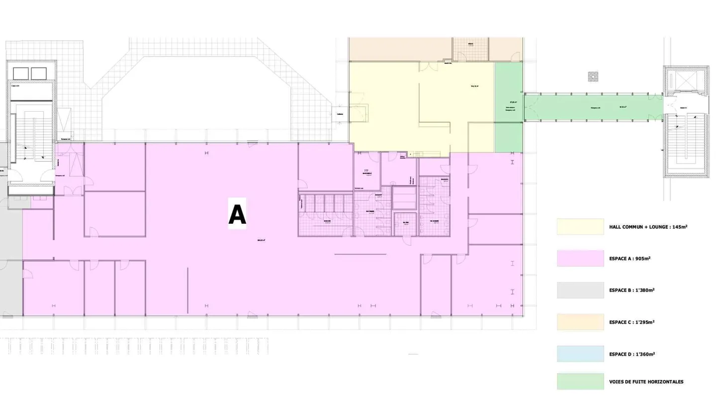
Espace de 5'000 m² adaptable
Cuisine privée et douches
Emplacement stratégique proche transports
Organiser une visite
Réserver une visite avec Klaus aujourd'hui !
Située au dernier étage du bâtiment IKEA, cette surface polyvalente de 1'360 m² est idéale pour une activité artisanale, technologique ou tertiaire.
Déjà divisée en 4 espaces équipés, elle offre un cadre de travail fonctionnel et adaptable à vos besoins.
Caractéristiques de la surface :
- 5'000 m² divisés en 4 espaces prêts à l'emploi.
- Espace commun avec réception et cafétéria.
- Cuisine privée, sanitaires et douches pour un confort optimal.
- Possibilité d'aménagement sur mesure selon vos besoin...
Détails du bien
- Disponible à partir de
- Sur accord
- Surface habitable
- 1360 m²
- Surface utilisable
- 1360 m²



