Hôtel à louer - Wankdorffeldstrasse 64, 3014 Bern
Pourquoi vous aimerez ce bien
Espaces lumineux et hauts
Accès direct par véhicule
Stockage optionnel au sous-sol
Organiser une visite
Réserver une visite aujourd'hui !
Locaux commerciaux à wankdorf
La propriété est située très centralement près de la gare de Wankdorf, dans un quartier commercial animé et à proximité de l'emplacement économique émergent Wankdorf-City.
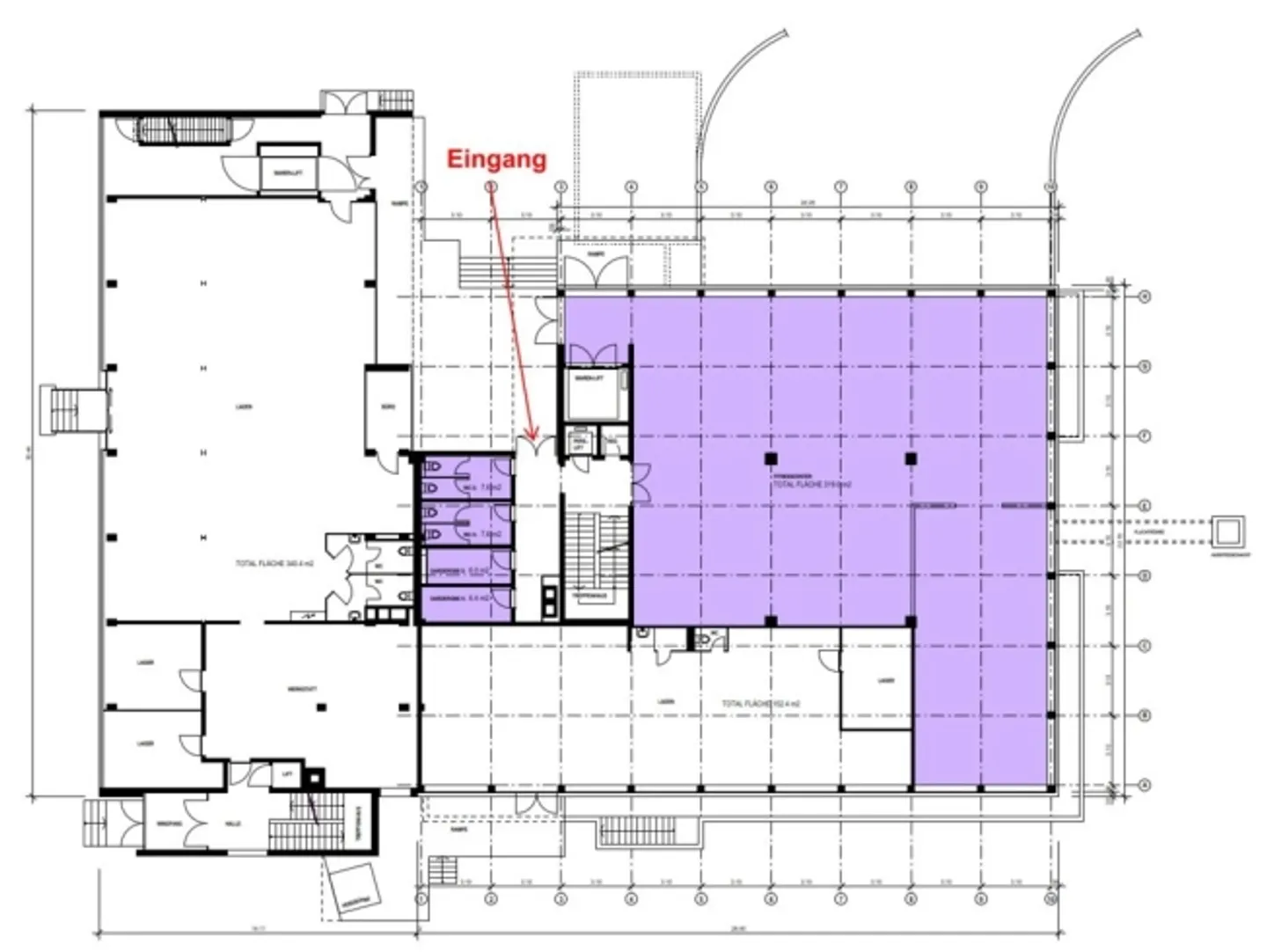
La surface commerciale à louer à partir du 01.04.2025 ou par accord est située au rez-de-chaussée de la propriété et dispose de pièces lumineuses et hautes, qui permettraient également une utilisation à deux étages.
La surface de bureau et commerciale peut être accessible directement par la rampe de véhicule existante. Des espac...
Détail des loyers
- Loyer net
- CHF 6’910
- Coûts supplémentaires
- CHF 835
- Total des loyers
- CHF 6’910
Détails du bien
- Disponible à partir de
- Sur accord
- Année de construction
- 1960



