Bureau à louer - Sennweidstrasse, 6312 Steinhausen
Pourquoi vous aimerez ce bien
Agencements d'espace personnalisables
Conditions de location abordables
Excellentes liaisons de transport
Organiser une visite
Réserver une visite avec Andreas aujourd'hui !
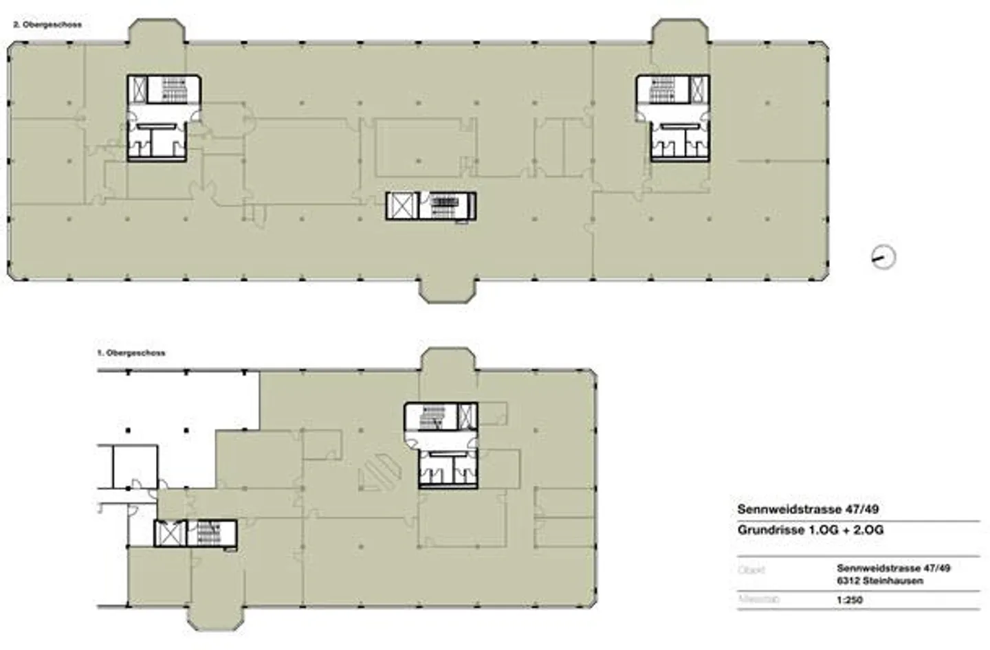
Utilisation temporaire jusqu'en 2029 - locations flexibles à partir de 250 m² jusqu'à 3 024 m²
Vous recherchez des bureaux et des espaces commerciaux dont vous pouvez déterminer la taille de manière flexible ? Faites-nous part de vos besoins en surface (surface locative minimale de 250 m²) et nous vérifierons volontiers les options appropriées.
Une rénovation complète est prévue pour le bâtiment de bureaux et commerciaux situé au Sennweidstrasse 47/49 à Steinhausen à la fin de 2029. Pour une utilisation temporaire, nous louons des espaces de bureaux et commerciaux flexibles sur une surface...
Détails du bien
- Disponible à partir de
- Sur accord
- Année de construction
- 1989



