Bureau à louer - Rue Kitty-Ponse, 1205 Genève
Pourquoi vous aimerez ce bien
Architecture Haussmann prestigieuse
Emplacement idéal, près parc
Matériaux haut de gamme
Organiser une visite
Réserver une visite avec Pardo aujourd'hui !
Bureau magnifique près du centre
Ce bâtiment, construit au début du 20ème siècle avec sa magnifique architecture haussmannienne, vous offre une belle carte de visite !
Il bénéficie d'un emplacement idéal, à deux pas du parc des Bastions et du rond-point de Plainpalais : proche de toutes les commodités, magasins, restaurants, parkings, lignes de bus et de tram.
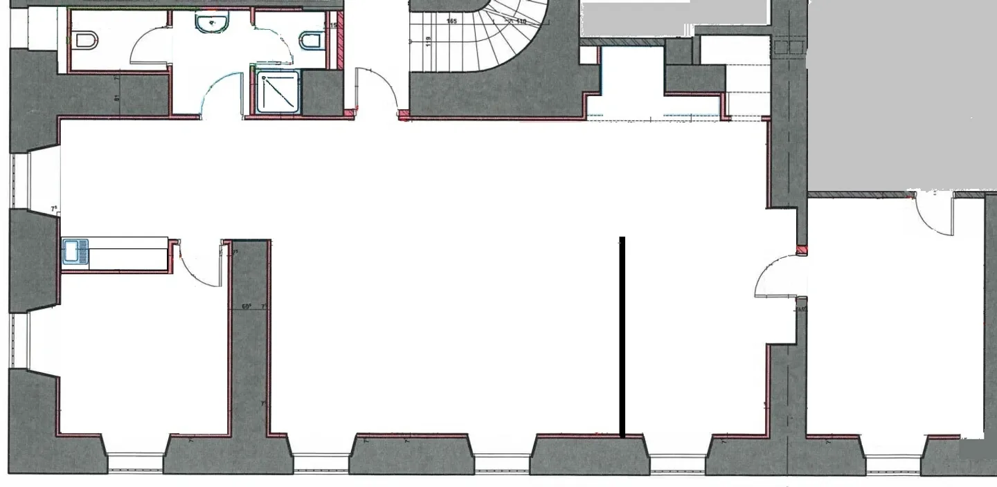
Nous vous proposons au sous-sol un beau bureau avec beaucoup de charme grâce à des matériaux de haute qualité.
Il est équipé comme suit :
- un open-space
- deux bureaux fer...
Détails du bien
- Disponible à partir de
- 16.10.2025
- Année de construction
- 1911
- Surface habitable
- 118 m²
- Surface utilisable
- 118 m²



