Bureau à louer - Rue de la Servette, 1201 Genève
Pourquoi vous aimerez ce bien
Zone de réception fonctionnelle
Proche des transports
Salle de conférence moderne
Organiser une visite
Réserver une visite avec Grégoire aujourd'hui !
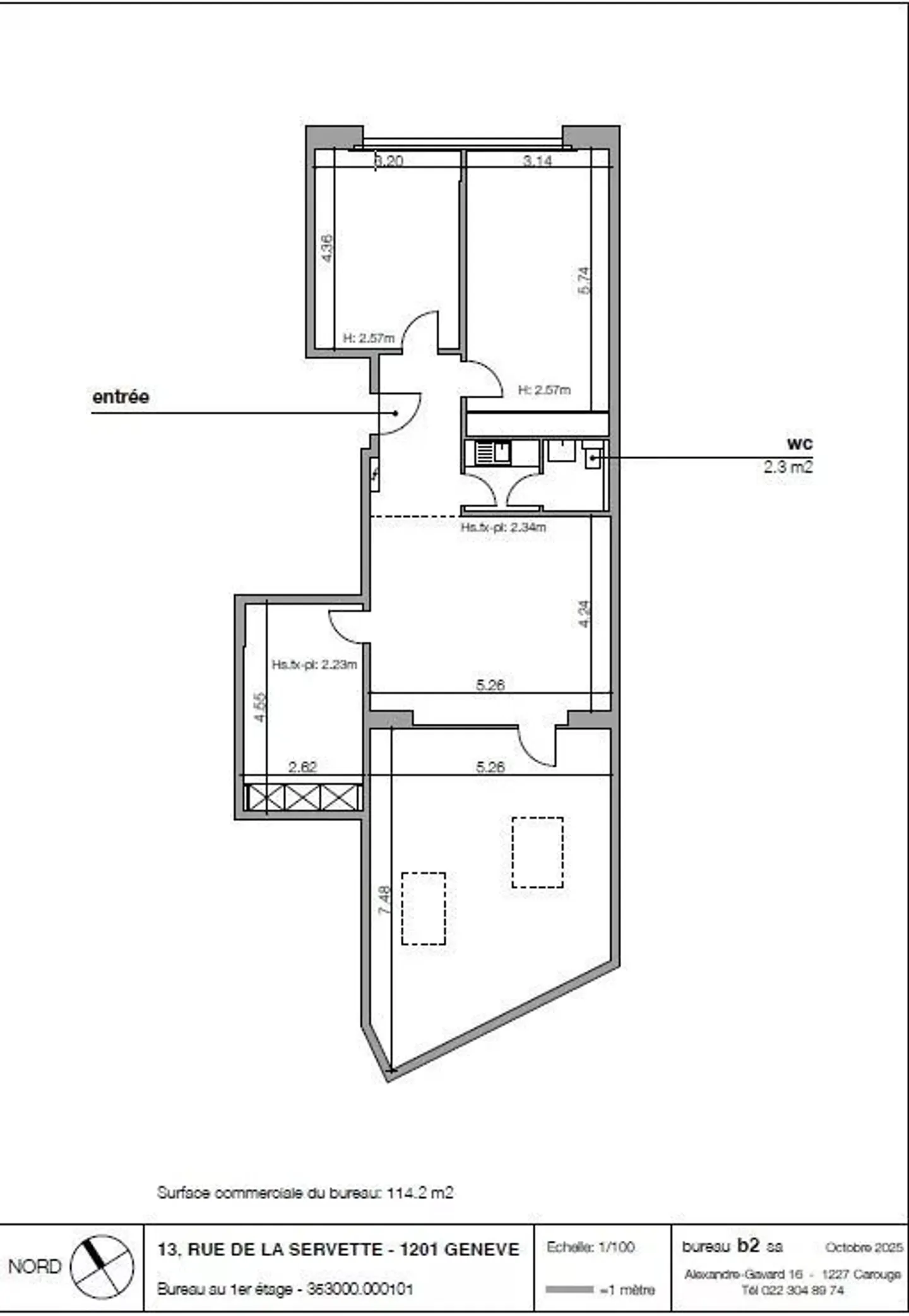
Bureaux de 114 m² idéalement situés
Au coeur du quartier dynamique de la Servette, ces bureaux de 114 m² au 1er étage offrent un cadre de travail agréable et fonctionnel, à proximité immédiate des transports publics, commerces et services.
Descriptif de la surface :
- 1 zone de réception
- 2 bureaux cloisonnés
- 1 salle de conférence
- 1 kitchenette
- 1 toilette
Contact pour les visites :
M. Grégoire MARRA
+41 22 319 88 17
commercial@comptoir-immo.ch
Détails du bien
- Disponible à partir de
- Sur accord
- Surface habitable
- 100 m²
- Surface utilisable
- 114 m²



