1 / 9

Commercial à louer - Frauenfelderstrasse, 8404 Winterthur

90 m² • 1er étage
CHF 1’125.-
CHF 150 m² / year

Pourquoi vous aimerez ce bien

Agencements personnalisables

Situé dans un grand projet

Accès facile aux transports

Organiser une visite

Réserver une visite avec Eva aujourd'hui !

Eva Schanz
L+B AG, HGV
Cette description a été traduite automatiquement depuis Allemand.

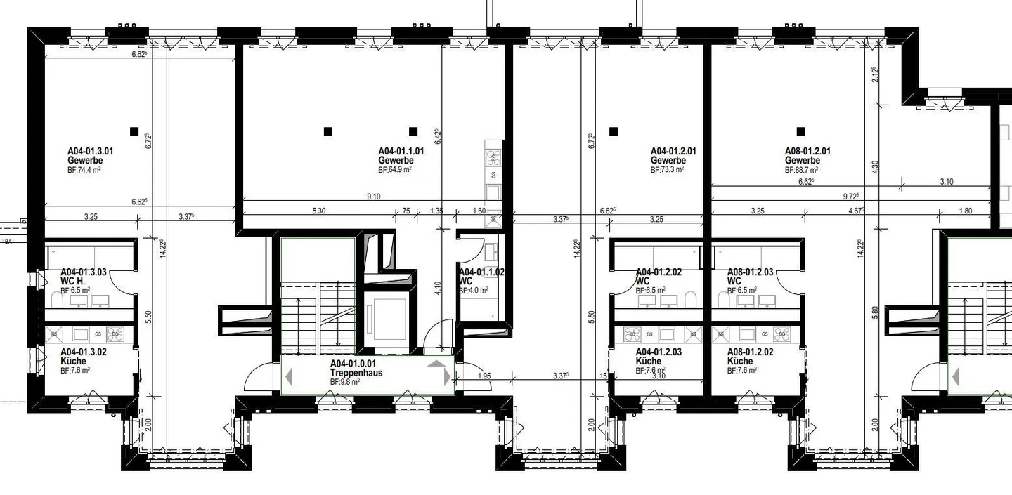
Bureau, atelier ou cabinet?

Quoi: Espaces commerciaux (de 70 à 200 m2) avec sanitaires et cuisines au 1er étage.

Pour quoi: Les espaces peuvent être développés individuellement en tant que bureau, atelier ou cabinet.

Où: À Oberwinterthur dans le projet approuvé "Eichwaldhof" - un grand projet résidentiel avec des espaces commerciaux individuels et 330 appartements

Emplacement: entre Frauenfelderstrasse et Schoorenstrasse/Eichwaldgraben - facilement accessible en transports publics et en voiture

Quand: Début de la construction ...

Détails du bien

Disponible à partir de
01.01.2027
Année de construction
2026
Surface habitable
90
Surface utilisable
90

Caractéristiques

Garage
Balcon
Parking
Ascenseur
Nouveau développement
Certifié Minergie
Adapté aux fauteuils roulants
Adapté aux enfants

Points d'intérêt à proximité

Transports publics - 0.1 km
Autoroute - 2 km

Agence

L+B AG, HGV
Adresse:Stationsstrasse 12, 8406, Winterthur
Eva Schanz
Ref: Eichwaldhof.Gewerbe_OG.250919
En ligne depuis
19/09/2025
il y a 1 mois

Localisation

Frauenfelderstrasse, 8404 Winterthur

Sources