Bureau à louer - En Budron E, 1052 Le Mont-sur-Lausanne
Pourquoi vous aimerez ce bien
Options d'espace flexibles
Atelier avec hauteurs sous plafond
Aménagement modulable disponible
Organiser une visite
Réserver une visite avec Picque aujourd'hui !
Bureau
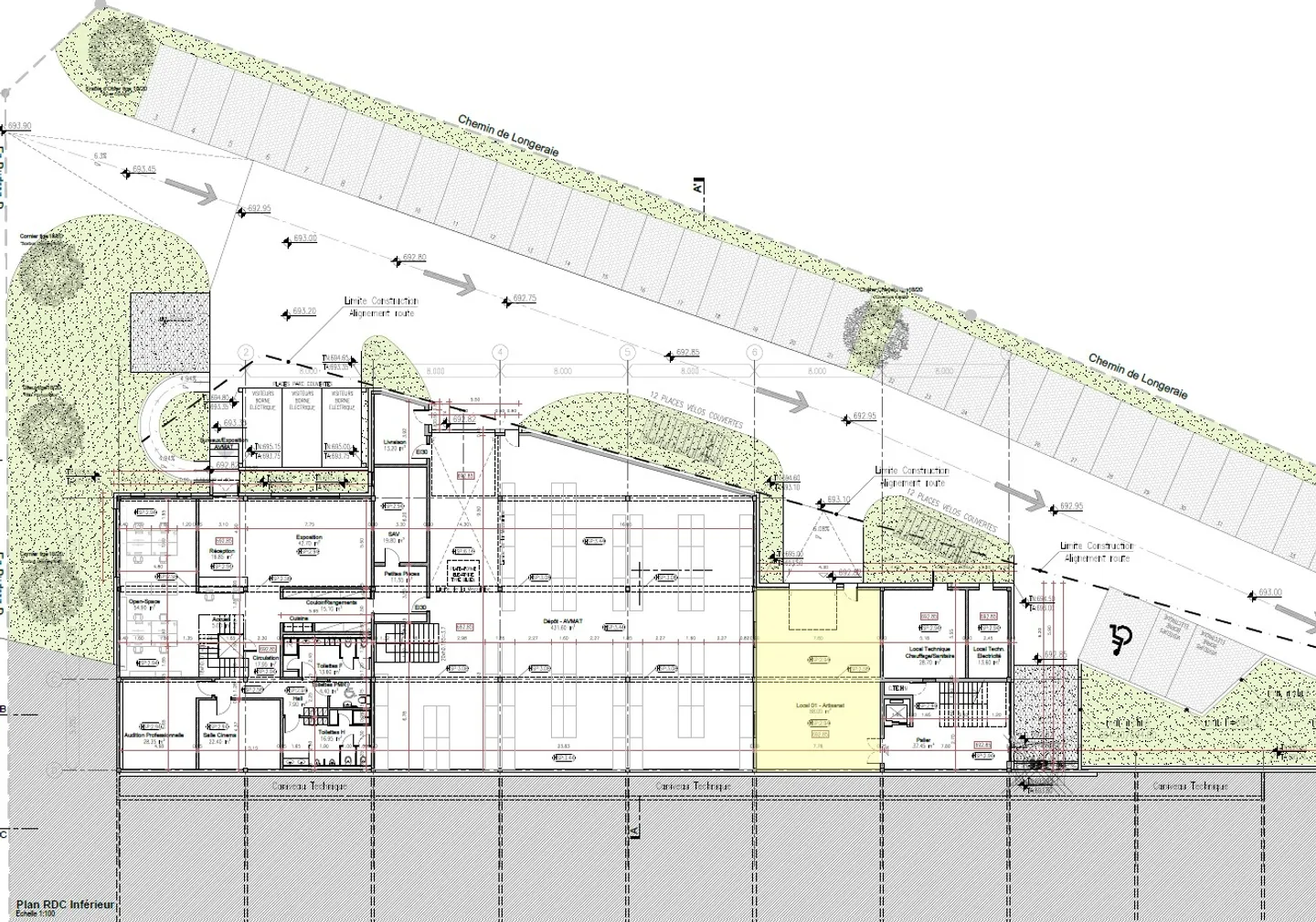
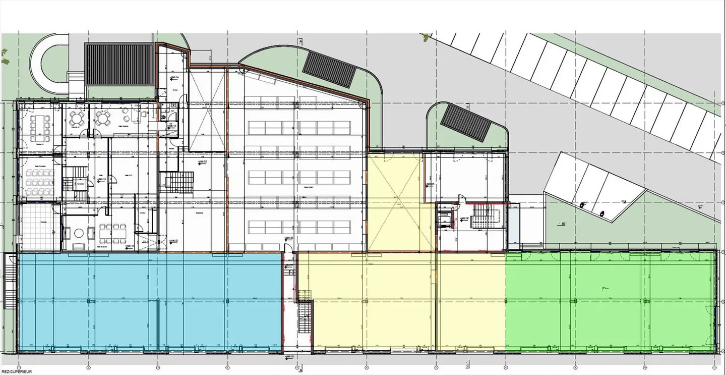
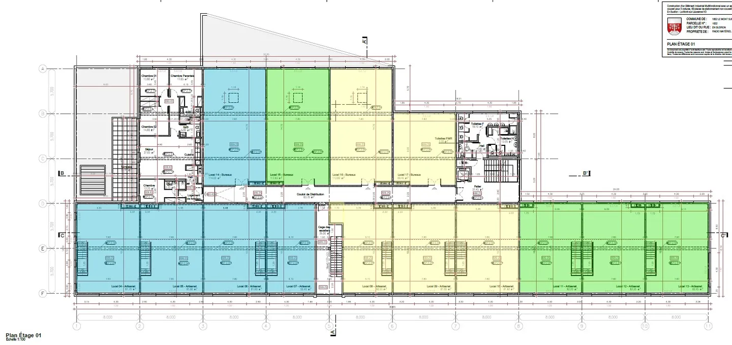
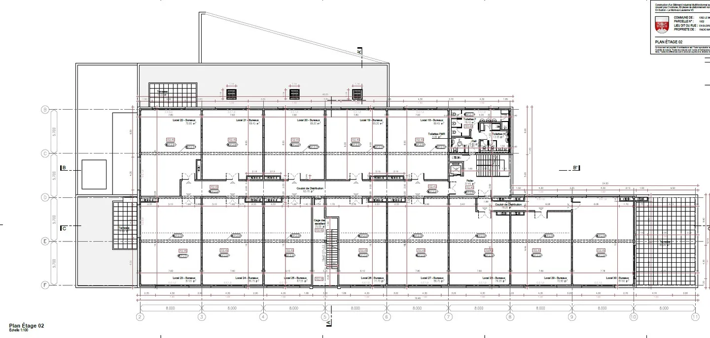
Surfaces mixtes à louer dans un ensemble immobilier neuf
CBRE vous présente un projet immobilier en developpement sur le Mont-Sur-Lausanne, ZI en Budron.
Cet ensemble mixte vous permettra d'avoir une surface d'atelier en rez et des bureaux en étage.
Plusieurs lots de disponibles :
- 449 m2 (atelier : 335 m2 / bureaux : 114 m2)
- 538,25 ( atelier : 355 m2 / bureaux : 183,25 m2)
- 381,65 (atelier : 268 m2 / bureaux : 113,65 m2)
- 996,7 m2 de bureaux au dernier étage (divisible dès 241,35 m2)
Le pr...
Détails du bien
- Disponible à partir de
- Sur accord
- Surface habitable
- 996 m²



