Bureau à louer - Chemin César- Courvoisier, 1290 Versoix
Pourquoi vous aimerez ce bien
Emplacement central et accessible
Espace lumineux avec vitrines
Options de rénovation flexibles
Organiser une visite
Réserver une visite avec Khaled aujourd'hui !
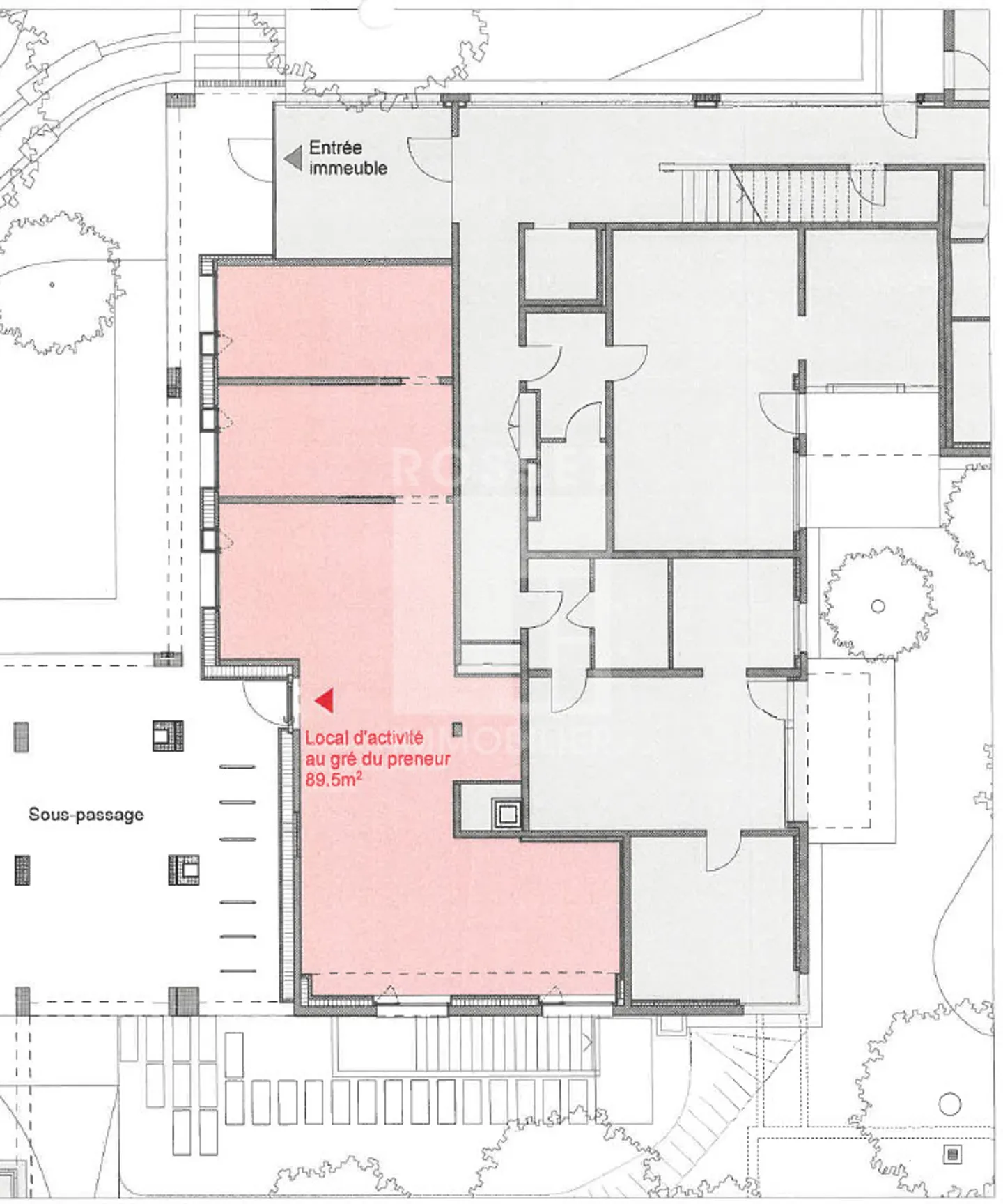
Bureaux d'env. 89 m² au rez-de-chaussée
Nous vous proposons à la location ces bureaux situés dans un immeuble au cœur de Versoix !
Idéalement situé, cet objet d'environ 89 m² au rez-de-chaussée, vous offre tout l'espace nécessaire pour développer votre activité dans un cadre professionnel agréable et fonctionnel.
Cet emplacement central est facilement accessible et bien desservi, ce qui facilite la vie de vos collaborateurs, clients et partenaires.
CARACTERISTIQUES DES LOCAUX
Cette arcade est en l'état brut le bailleur est disposé à p...
Détail des loyers
- Loyer net
- CHF 2’290
- Coûts supplémentaires
- CHF 200
- Total des loyers
- CHF 2’290
Détails du bien
- Disponible à partir de
- 02.12.2025
- Surface habitable
- 89.5 m²



