Commercial à louer - Tägerhardstrasse 99, 5430 Wettingen
Pourquoi vous aimerez ce bien
Options de disposition flexibles
Lavabo privé inclus
Accès par ascenseur et parking
Organiser une visite
Réserver une visite aujourd'hui !
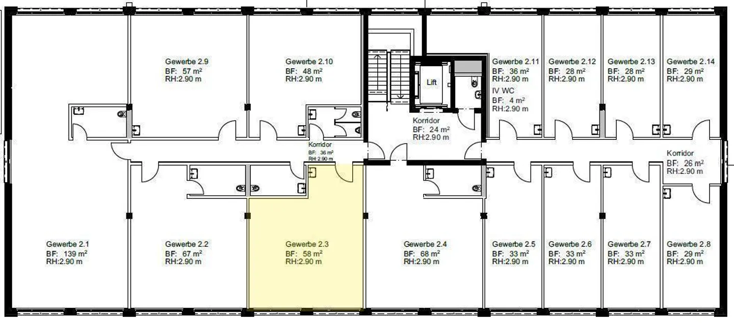
Bureau/agence/espace commercial avec lavabo - 58m2 au 2ème étage dans un nouveau bâtiment
NOUVEAU BÂTIMENT - MODERNE - juste à côté de COOP-TÄGIPARK
Bien locatif de 58m2 pour
> Bureau-Notariat-Agence-Pratique-Thérapie-Formation
> Répartition des pièces optionnelle possible avec par exemple deux bureaux, salle de réunion, etc.
Évier propre dans le bien locatif.
Petite kitchenette, également réalisable en option dans le bien locatif.
Ascenseur/escalier, stations de recharge pour voitures + vélos électriques, places de parking pour clients, chauffage au plafond incluant une fonction de ...
Détail des loyers
- Loyer net
- CHF 1’215
- Coûts supplémentaires
- CHF 150
- Total des loyers
- CHF 1’215
Détails du bien
- Disponible à partir de
- Sur accord
- Année de construction
- 2025



