Commercial à louer - Tägerhardstrasse 99, 5430 Wettingen
Pourquoi vous aimerez ce bien
Agencement flexible
Accès par ascenseur
Centre commercial à proximité
Organiser une visite
Réserver une visite aujourd'hui !
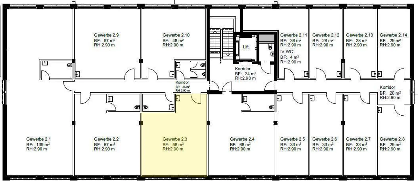
Bureau/Cabinet d'avocats/Commercial avec lavabo - 58m2 au 2ème étage dans un nouveau bâtiment
NOUVEAU BÂTIMENT - MODERNE - directement à côté du COOP-TÄGIPARK
Objet de location de 58m2 pour
> Bureau-Notariat-Cabinet d'avocats-Cabinet médical-Thérapie-Formation
> Division des pièces optionnelle possible avec par exemple deux bureaux, salle de réunion, etc.
Lavabo privé dans l'objet de location.
Petite kitchenette, également réalisable en option dans l'objet de location.
Ascenseur/escalier, bornes de recharge pour voitures+vélos électriques, places de parking clients, chauffage au plafond ...
Détail des loyers
- Loyer net
- CHF 1’215
- Coûts supplémentaires
- CHF 150
- Total des loyers
- CHF 1’215
Détails du bien
- Disponible à partir de
- Sur accord
- Année de construction
- 2025



