Bureau à louer - Hauptstrasse 97, 4147 Aesch BL
Pourquoi vous aimerez ce bien
Zone à fort passage
Emplacement central avec tram
Luminosité grâce aux grandes fenêtres
Organiser une visite
Réserver une visite avec Denise aujourd'hui !
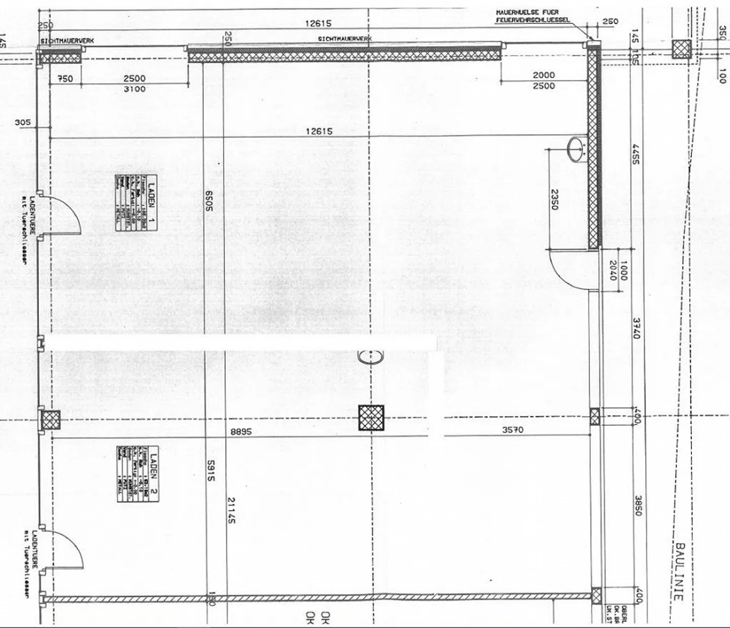
Grand magasin dans le centre commercial d'Aesch
Vous recherchez un emplacement idéal pour votre entreprise ? Ce magasin situé sur la boucle de tramway très fréquentée d'Aesch vous offre : - Excellente visibilité grâce à une forte fréquentation - Emplacement central avec de bonnes connexions au tramway et aux transports en commun - Possibilités d'utilisation flexibles pour le commerce de détail ou les services - Lumineux et accueillant grâce à une grande vitrine Avons-nous éveillé votre intérêt ? N'hésitez pas à prendre rendez-vous sans engage...
Détail des loyers
- Loyer net
- CHF 4’440
- Coûts supplémentaires
- CHF 600
- Total des loyers
- CHF 4’440
Détails du bien
- Disponible à partir de
- Sur accord
- Année de construction
- 1988



