Bureau à louer - Bergstrasse 97, 8706 Meilen
Pourquoi vous aimerez ce bien
Emplacement ensoleillé avec terrasse
Cuisine moderne avec appareils
Entrée accessible aux fauteuils roulants
Organiser une visite
Réserver une visite aujourd'hui !
Bureau
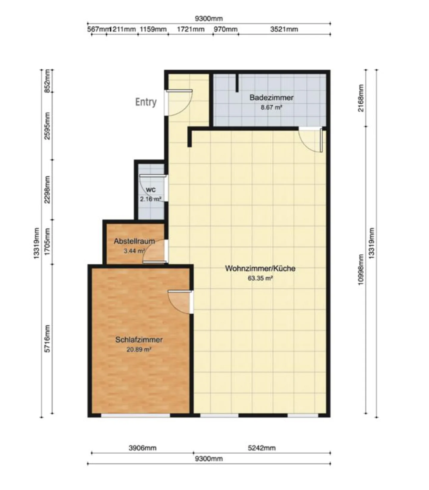
À partir de la mi-novembre ou sur rendez-vous, nous louons ces locaux spacieux à Meilen. Avec 98 m² de surface nette et une certification Minergie, ce bien accessible aux fauteuils roulants offre des locaux représentatifs dans un emplacement ensoleillé (orientation sud). En plus d'un grand bureau ou d'un espace de vente, la surface à louer comprend une chambre séparée, une salle de bain entièrement équipée, un WC invités, un réduit ainsi qu'une cuisine dans la zone principale. Le plan d'étage av...
Détails du bien
- Disponible à partir de
- Sur accord



