Bureau à louer - Rue Des Eaux-Vives 94, 1207 Genève
Pourquoi vous aimerez ce bien
Emplacement central près du lac
Équipé de la climatisation
Accès par ascenseur pour commodité
Organiser une visite
Réserver une visite avec Khaled aujourd'hui !
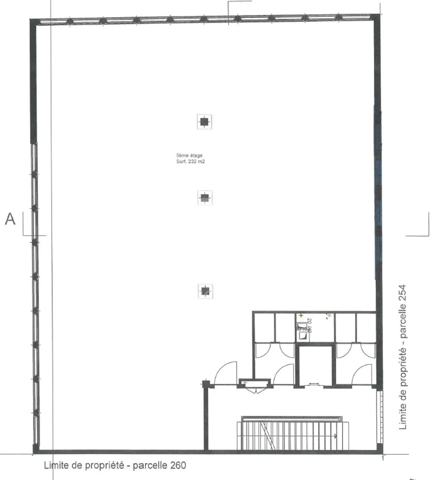
Bureaux d'env. 241 m² au 5ème étage
Nous vous proposons à la location ces bureaux situés dans un immeuble rénové, au coeur de Genève !
Idéalement situé rue des Eaux-Vives 94 cet objet d'environ 241 m², situé au 5ème étage, vous offre tout l'espace nécessaire pour développer votre activité dans un cadre professionnel agréable et fonctionnel.
Récemment rénové, l'immeuble respecte les standards Minergie les plus récents, alliant confort moderne et performance énergétique.
Cet emplacement central est facilement accessible et bien dess...
Détail des loyers
- Loyer net
- CHF 9’640
- Coûts supplémentaires
- CHF 600
- Total des loyers
- CHF 9’640
Détails du bien
- Disponible à partir de
- Sur accord
- Surface habitable
- 241 m²



