1 / 13

Bureau à louer - Chemin Des Roses 90a, 1844 Villeneuve VD

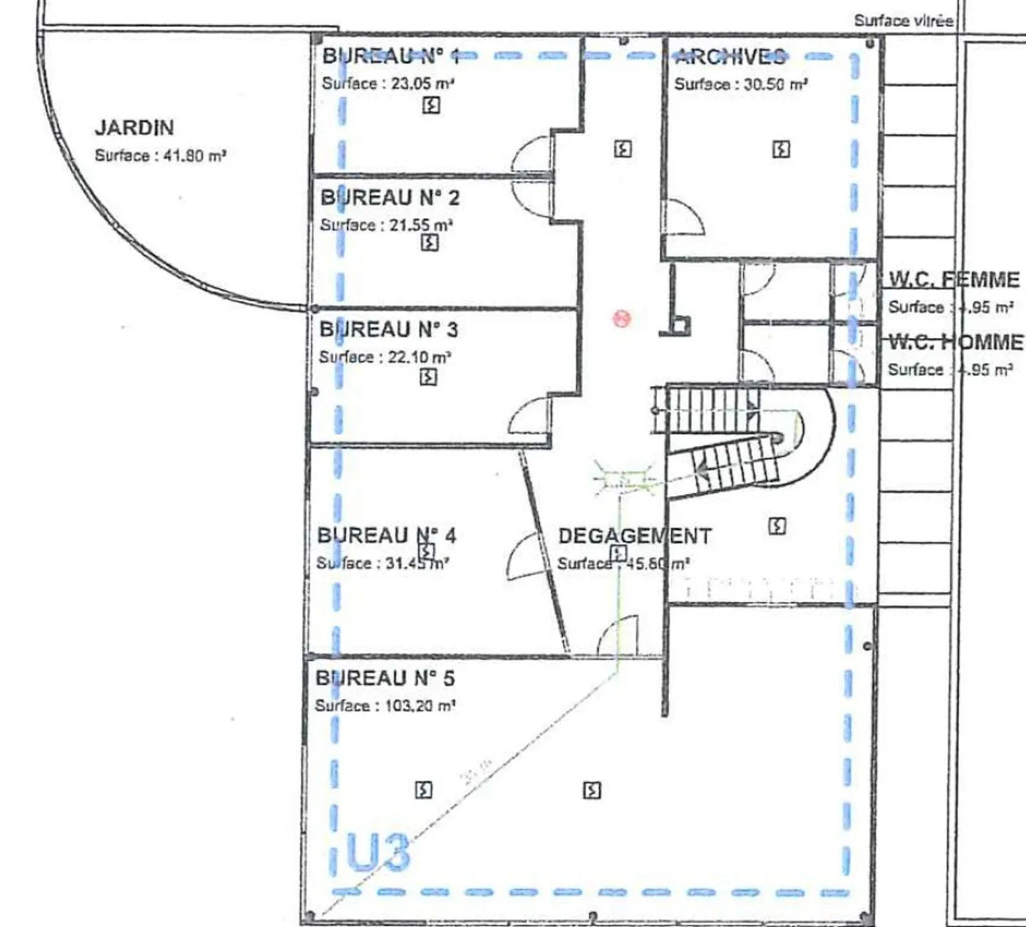
103 m² • 1er étage
CHF 1’545.-
CHF 180 m² / year

Pourquoi vous aimerez ce bien

Accès immédiat à l'A9

Options de location flexibles

Lumineux avec double vitrage

Organiser une visite

Réserver une visite avec Rafael aujourd'hui !

Rafael De Carvalho
PROCIMMO SA

Surface de 103m2 dans une zone calme et verdoyante **

Situation géographique

**- Proximité immédiate aux commerces et à l'autoroute A9 (5 minutes)

- Gare de Villeneuve desservie en 4 minutes **

Aménagement

**- Affectation : Bureau / artisanal léger / commercial

- Surface : 103 m2

- Etage : 1er

- Hauteur plafond : 2.60

- Fenêtre : double vitrage

- Escalier **

Commodités

- WC communs

Disponibilité

- Immédiate ou à convenir Conditions de location**

- Loyer: CHF 1'545.-

- Charges: CHF 260.-

- Place de parc: CHF 65....

Détails du bien

Disponible à partir de
Sur accord
Surface habitable
103
Surface utilisable
103

Agence

PROCIMMO SA
Adresse:Rue de Lausanne 64, 1020, Renens
Ref: mig-1182-2766485
En ligne depuis
07/09/2025
il y a 1 mois

Localisation

Chemin Des Roses 90a, 1844 Villeneuve VD