Bureau à louer - Chemin Des Roses 90, 1844 Villeneuve VD
Pourquoi vous aimerez ce bien
Accès immédiat à l'A9
Options de location flexibles
Lumineux avec double vitrage
Organiser une visite
Réserver une visite avec Rafael aujourd'hui !
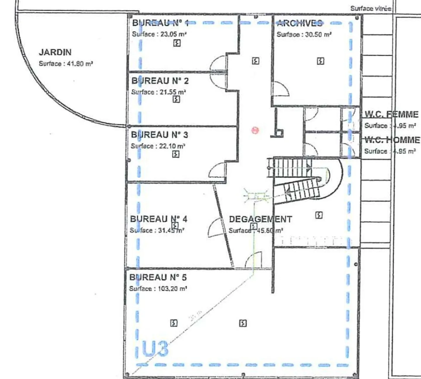
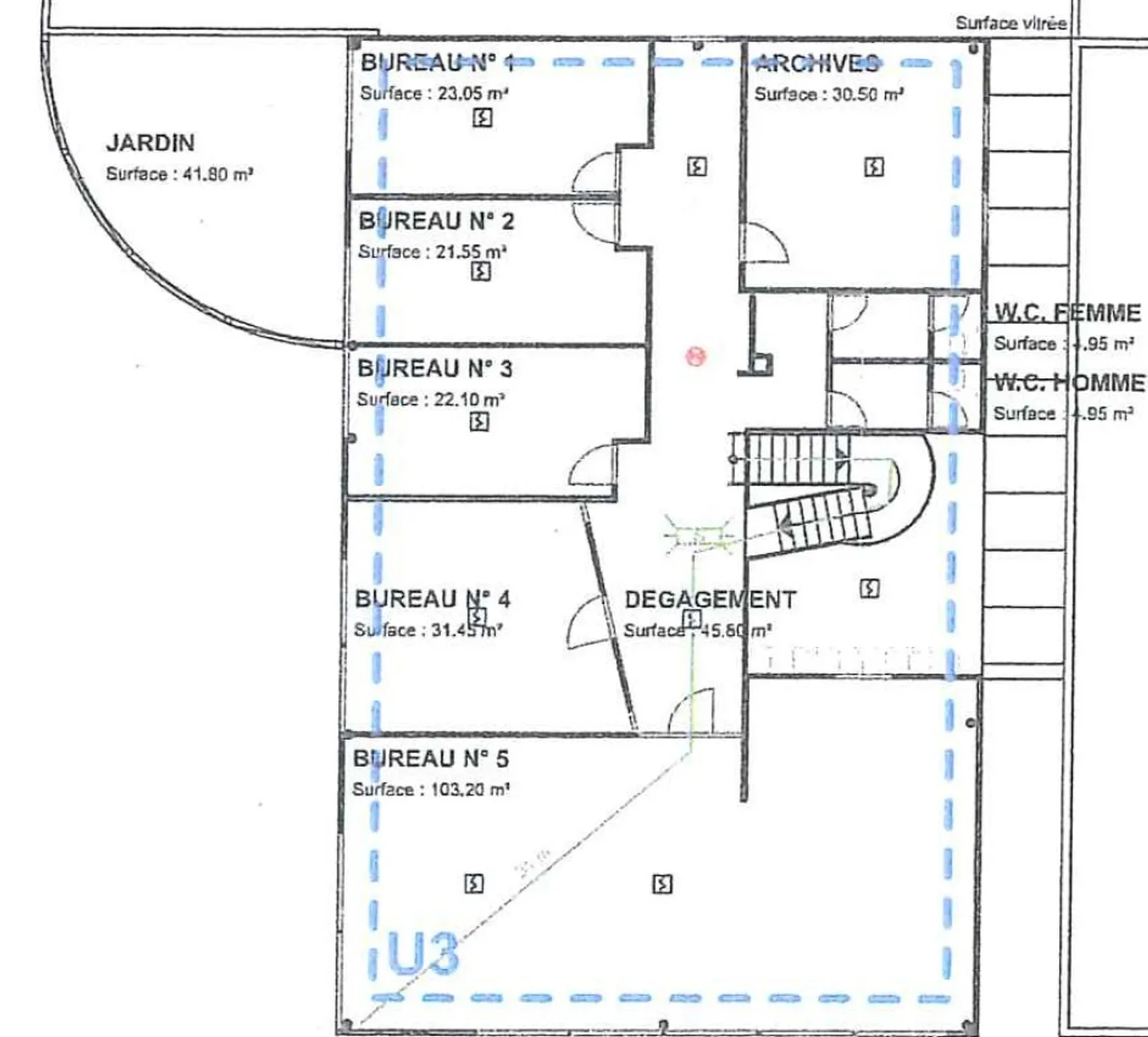
Surface de 103m2 dans une zone calme et verdoyante **
Situation géographique
**- Proximité immédiate aux commerces et à l'autoroute A9 (5 minutes)
- Gare de Villeneuve desservie en 4 minutes **
Aménagement
**- Affectation : Bureau / artisanal léger / commercial
- Surface : 103 m2
- Etage : 1er
- Hauteur plafond : 2.60
- Fenêtre : double vitrage
- Escalier **
Commodités
- WC communs
Disponibilité
- Immédiate ou à convenir Conditions de location**
- Loyer: CHF 1'545.-
- Charges: CHF 260.-
- Place de parc: CHF 65....
Détails du bien
- Disponible à partir de
- Sur accord
- Salles de bain
- 2
- Surface habitable
- 103 m²
- Surface utilisable
- 103 m²



