Bureau à louer - Rue Saint-Martin 9, 1003 Lausanne
Pourquoi vous aimerez ce bien
Intérieurs fraîchement rénovés
Options de disposition flexibles
Visibilité optimale avec grandes vitrines
Organiser une visite
Réserver une visite avec Comitino aujourd'hui !
Vous recherchez un espace contemporain, fonctionnel et prêt à accueillir votre activité ?
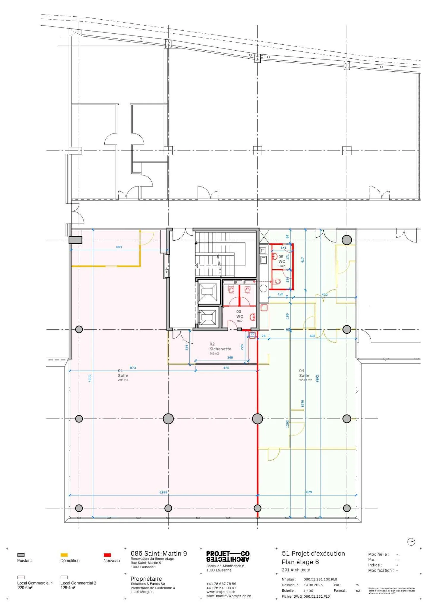
Découvrez ces deux superbes surfaces commerciales fraîchement rénovées, issues de la division d'un plateau de 366 m². Adaptables à tout type de projet bureaux, commerces, showrooms ou cabinets professionnels ces locaux allient visibilité, confort et flexibilité.
Surface de 129 m²
- Un toilette moderne et fonctionnelle
- Une cuisine neuve et équipée
- Rénovation complète (sols, peinture, installations technique...
Détails du bien
- Disponible à partir de
- Sur accord
- Surface habitable
- 123 m²
- Surface utilisable
- 123 m²



