Bureau à louer - Avenue De Champel 8c, 1206 Genève
Pourquoi vous aimerez ce bien
Design lumineux en open-space
Accès à cuisine professionnelle
Salles de réunion disponibles
Organiser une visite
Réserver une visite aujourd'hui !
«bureau»
Champel - Bureaux de standing aménagés à deux pas du Léman Express
Au sein d'un immeuble qualitatif, les surfaces profitent d'un excellent cadre de travail et d'une situation optimale (proximité immédiate au Leman Express - Gare Genève-Champel).
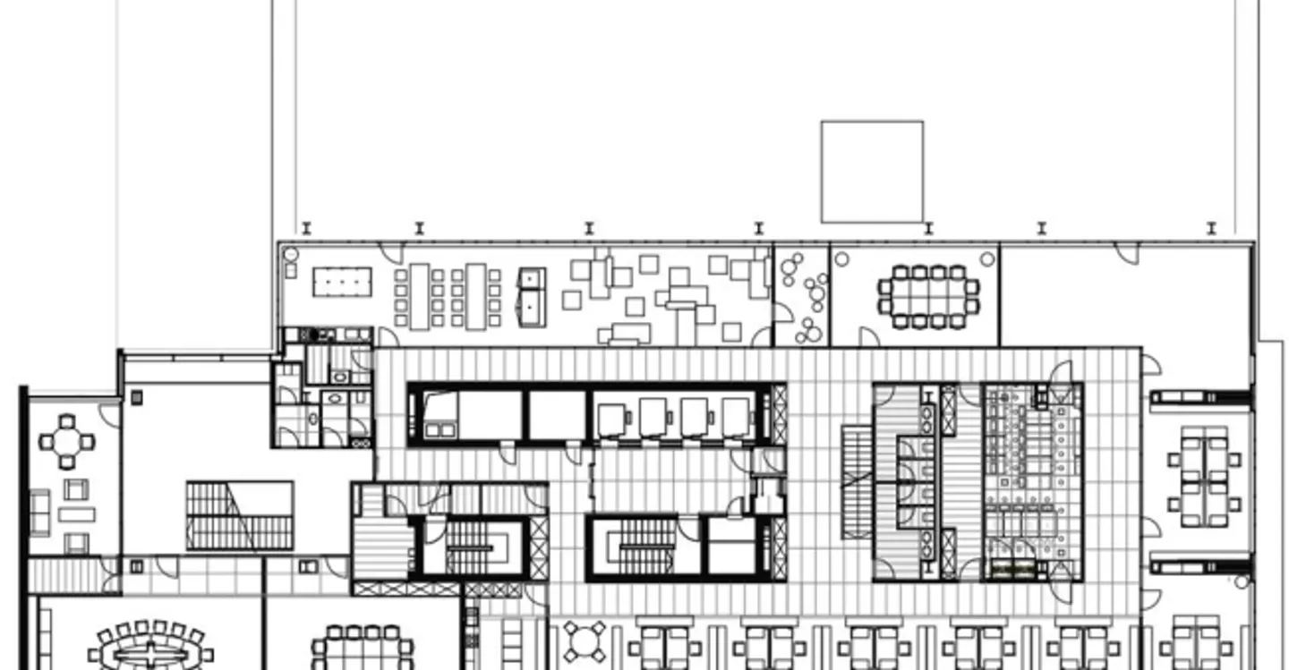
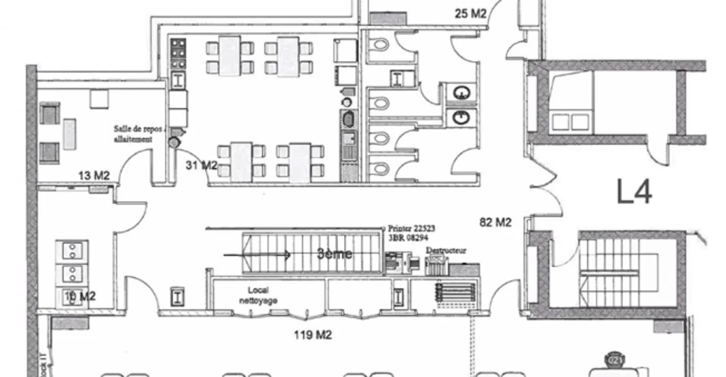
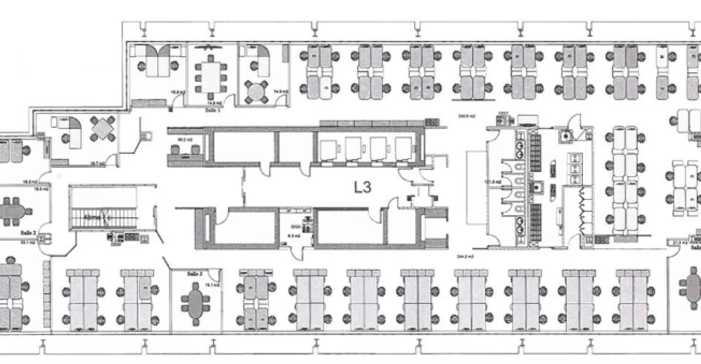
3'604 m2 de bureaux disponibles répartis de la manière suivante :
- 1er étage : 1'404 m2
- 2ème étage : 943 m2
- 3ème étage : 944 m2
- 4ème étage : 313 m2
Caractéristiques des locaux :
- Ascenseurs et contrôle d'accès
- Aménagement de qualité (mix open-space ...
Détails du bien
- Disponible à partir de
- Sur accord



