Bureau à louer - Avenue Des Morgines 8, 1213 Petit-Lancy
Pourquoi vous aimerez ce bien
Finitions de haute qualité
Façade en verre complet
Restaurant et salle de sport sur place
Organiser une visite
Réserver une visite avec Humbert aujourd'hui !
Lancy - bureaux modernes
À louer dans un bâtiment de très bon standing :
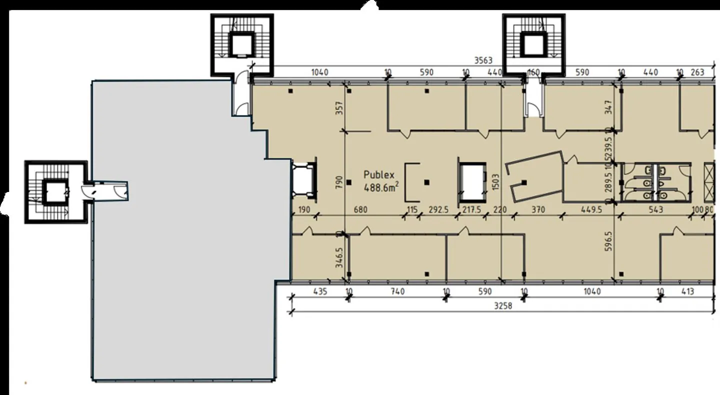
- 490 m2 au 2ème étage
- 319 m2 au 6ème étage
Équipement de haute qualité
Contrôle d'accès
Ascenseurs et ascenseurs de fret
Plancher technique
Système de refroidissement et de chauffage par plafond actif
Sanitaires séparés
Espaces lumineux - vitrage complet
Restaurant et salle de fitness (mur d'escalade) dans le bâtiment
Espaces communs de haute qualité
Emplacement :
- Connexion rapide au centre-ville (Bel-Air ; Cornavin) et Pont-Rouge grâce à la pr...
Détails du bien
- Disponible à partir de
- Sur accord
- Surface habitable
- 490 m²
- Surface utilisable
- 490 m²



