Commercial à louer - Chemin Vert 7, 1804 Corsier-sur-Vevey
CHF 4’060
-
Pourquoi vous aimerez ce bien
Emplacement de choix
Immeuble entièrement rénové
Espace brut aménageable
Organiser une visite
Réserver une visite aujourd'hui !
de Rham SA
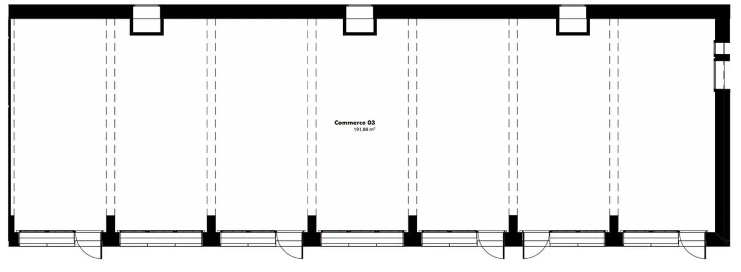
Arcade de 192m2 avec vitrine
Surface d'activité située au RDC dans un immeuble d'habitation entièrement rénové proposant 48 logements.
Deux locaux commerciaux donnant sur une rue passante dans un quartier bien desservi et en pleine expansion.
Livrée brute, aménageable au gré du locataire
Détail des loyers
- Loyer net
- CHF 4’060
- Coûts supplémentaires
- CHF 560
- Total des loyers
- CHF 4’060
Détails du bien
- Disponible à partir de
- Sur accord
Agence
de Rham SA
Adresse:Avenue Mon-Repos 14, 1005 Lausanne
Ref: 3810.04.000030
En ligne depuis
27/08/2025
il y a 3 mois
Localisation
Chemin Vert 7, 1804 Corsier-sur-Vevey



