Immeuble industriel à louer - 6855 Stabio
Pourquoi vous aimerez ce bien
Conception moderne et fonctionnelle
Système de chauffage géothermique
Emplacement stratégique près de la frontière
Organiser une visite
Réserver une visite avec Ferrari aujourd'hui !
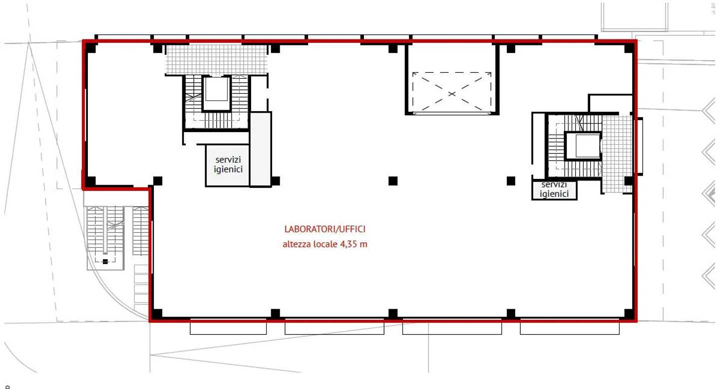
STABIO – NOUVEAU BÂTIMENT INDUSTRIEL/COMMERCIAL
STABIO – NOUVEAU BÂTIMENT INDUSTRIEL/COMMERCIAL
Dans le cadre d'un projet de nouvelle construction, une solution idéale pour les entreprises à la recherche de visibilité, de fonctionnalité et de connexions efficaces dans une zone en constante évolution. Où : zone stratégique et dynamique, à proximité de la frontière avec l'Italie, idéale pour des activités commerciales, industrielles ou logistiques. Excellentes connexions avec l'autoroute Lugano-Milan et le réseau cantonal, proche de la gare de S...
Détails du bien
- Disponible à partir de
- Sur accord



