Atelier à louer - Rheinstrasse 63, 7012 Felsberg
Pourquoi vous aimerez ce bien
Prêt à l'emploi immédiat
Approvisionnement énergétique durable
Idéal pour petite cuisine
Organiser une visite
Réserver une visite avec DEFLORIN aujourd'hui !
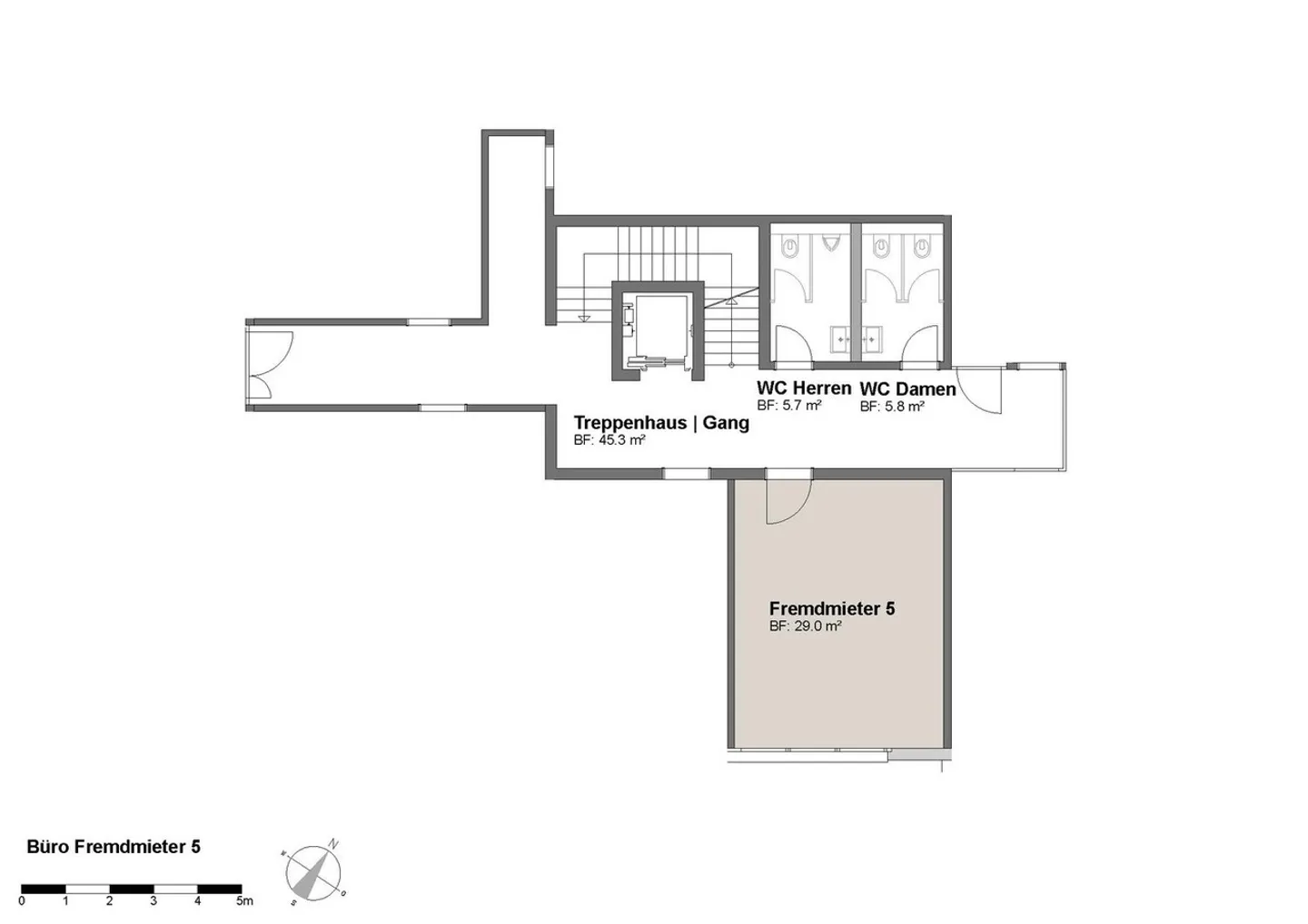
Réservez dès maintenant votre salle de loisirs moderne dans le nouvel immeuble attrayant situé au 63a Rheinstrasse à Felsberg avec une date d'emménagement au 01.04.2026.
Vos avantages en un coup d'œil :
* Nouvelle construction avec développement de base existant : prêt à emménager immédiatement
* Développement de base de la salle de loisirs : moquette en boule, chauffage au sol, stores enrouleurs électriques, fenêtres à triple vitrage, installations électriques et éclairage
* Raccordement d'eau d...
Détail des loyers
- Loyer net
- CHF 500
- Coûts supplémentaires
- CHF 70
- Total des loyers
- CHF 500
Détails du bien
- Disponible à partir de
- Sur accord
- Année de construction
- 2026
- Surface habitable
- 29 m²
- Surface utilisable
- 29 m²



