Bureau à louer - Rue Du Rhône 62, 1204 Genève
Pourquoi vous aimerez ce bien
Bâtiment prestigieux rénové
Salles lumineuses avec cours
Finitions de haute qualité
Organiser une visite
Réserver une visite avec Philipps aujourd'hui !
Bureaux à louer, centre-ville de Genève
À louer, Rue du Rhône, espaces de bureaux dans un bâtiment prestigieux et entièrement rénové.
Le bâtiment Emblem, idéalement situé au Rue du Rhône 62, dispose des caractéristiques suivantes :
https://emblem-rhone62.ch/
Propriété rénovée avec nouvelle façade
Certification Breeam
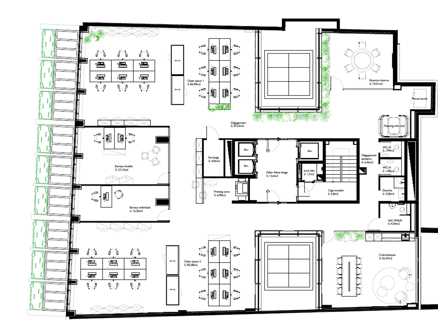
1'560 m2 restants, répartis sur 4 niveaux
Étage typique de 398 m2
Deux cours
Équipements lumineux
Équipements de haute qualité
Remise des locaux :
Plafonds actifs
Revêtement de sol
Raccordements sanitaires et d'ea...
Détails du bien
- Disponible à partir de
- Sur accord
- Année de rénovation
- 2024
- Surface habitable
- 800 m²
- Surface utilisable
- 800 m²
