Bureau à louer - Löwenstrasse 60, 8001 Zürich
Pourquoi vous aimerez ce bien
Vues imprenables
Grande cuisine spacieuse
Agencement moderne
Organiser une visite
Réserver une visite aujourd'hui !
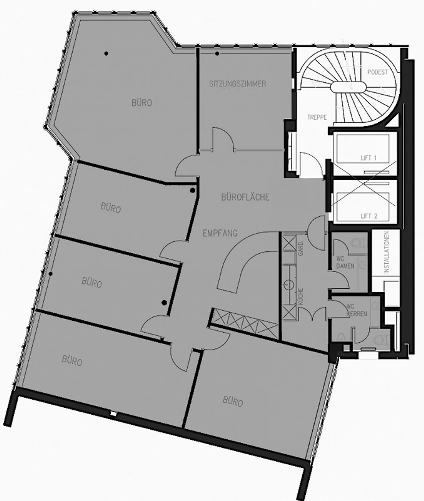
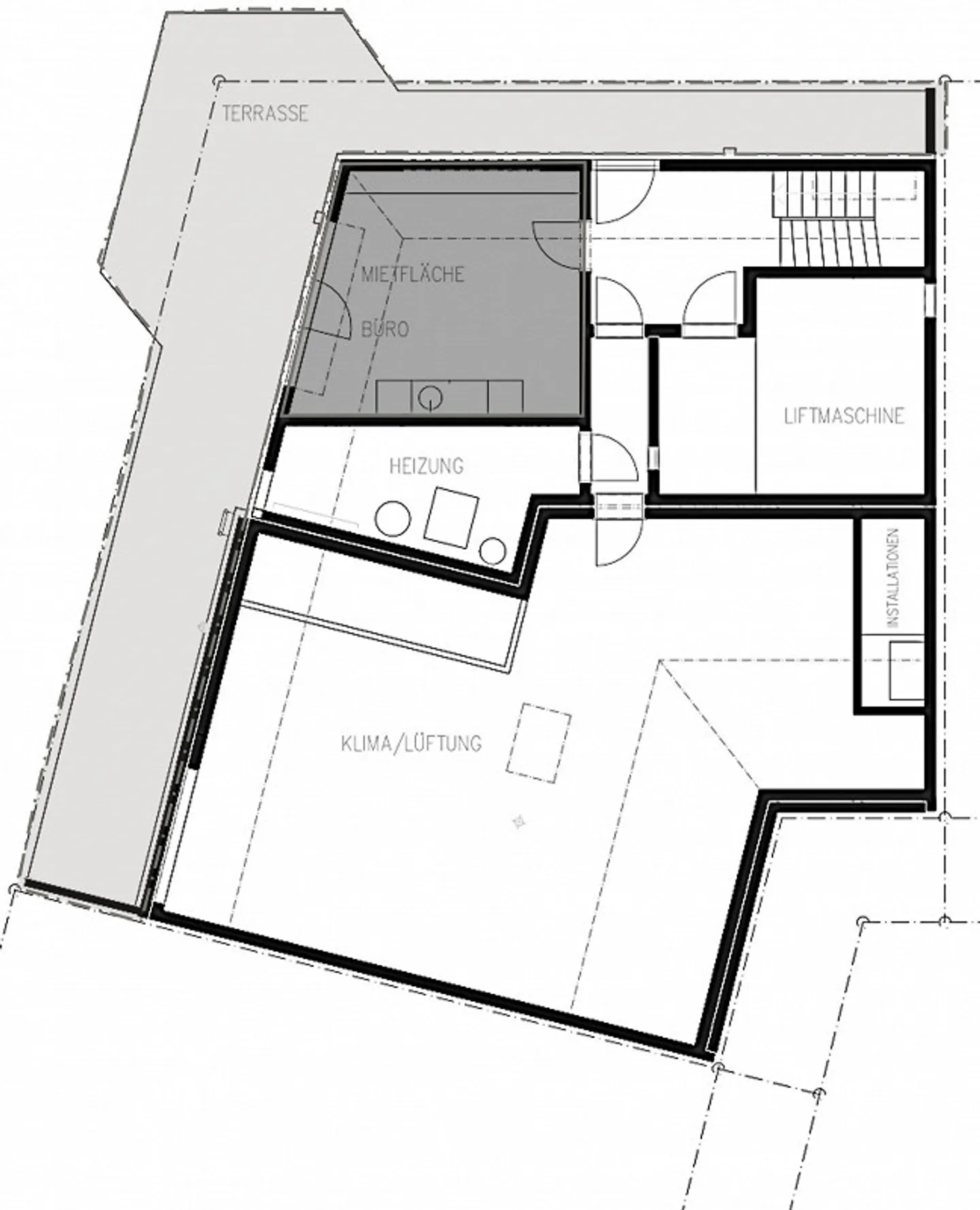
Travailler avec une vue - étage de bureau aménagé avec terrasse sur le toit près de hb
Travailler avec une vue - Étage de bureau aménagé avec terrasse sur le toit près de HB
Adresse: Löwenstrasse 60 / Schützengasse 25, 8001 Zurich
Surface de bureau: env. 204 m²
Étage: 5 + 6ème étage
Aménagement: Aménagé
Disponibilité: à partir du T1 2026
Emplacement:
L'une des adresses les plus recherchées au cœur de Zurich propose 204 m² d'espace de bureau répartis sur deux étages - à quelques pas de la gare principale. L'emplacement excellent combine une accessibilité parfaite avec un environnement de...
Détails du bien
- Disponible à partir de
- Sur accord



