Bureau à louer - Habsburgerstrasse 6, 5200 Brugg AG
Pourquoi vous aimerez ce bien
Salles lumineuses au style industriel
Emplacement central près du train
Espace flexible pour divers usages
Organiser une visite
Réserver une visite avec David aujourd'hui !
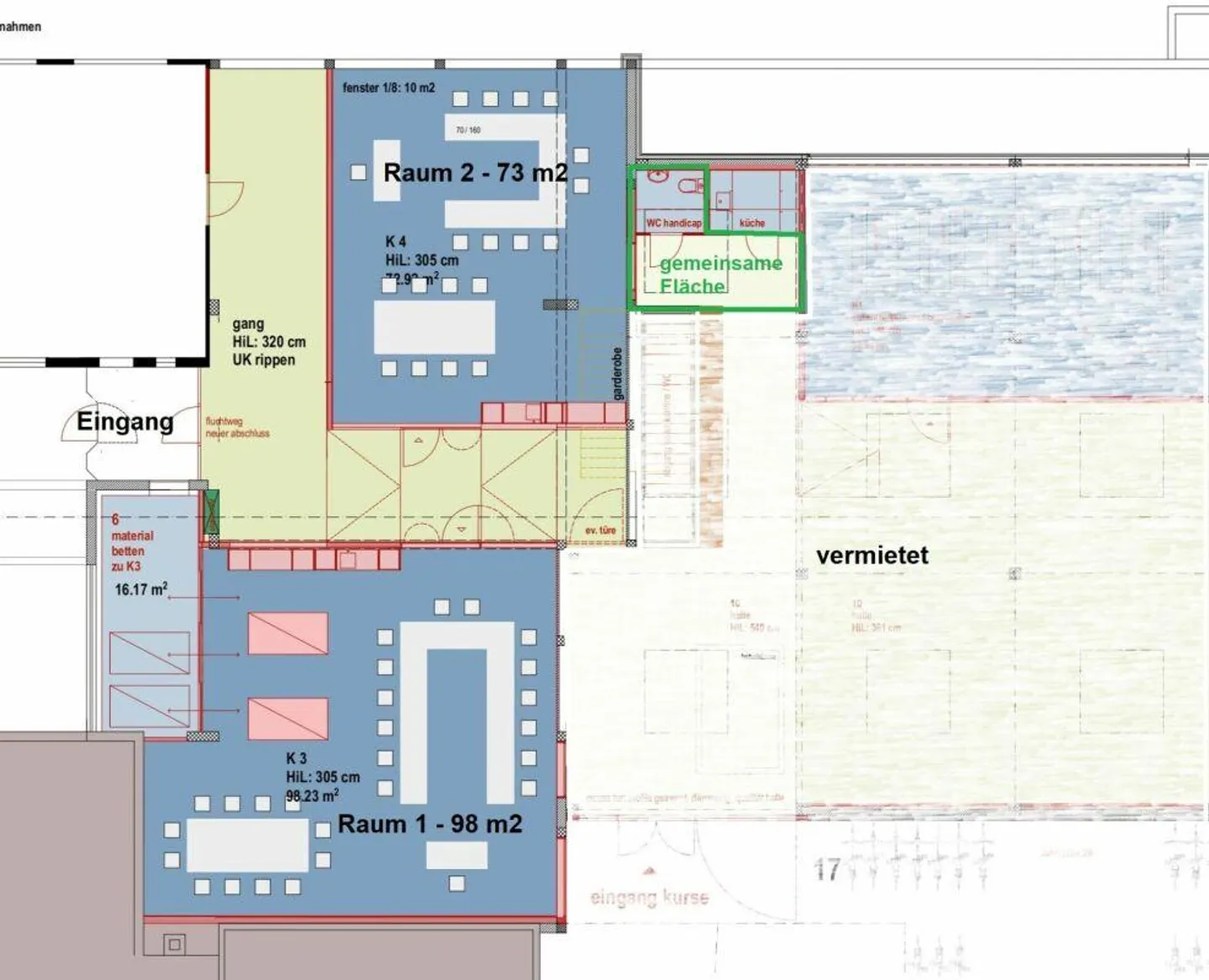
251 m² espaces commerciaux/bureaux et de formation passionnants près de la gare de brugg
Vous cherchez un espace commercial unique et contemporain pour des bureaux, des salles de formation, une exposition ou par exemple pour votre atelier avec une ambiance industrielle ? Ces pièces baignées de lumière impressionnent non seulement par leur emplacement central, mais aussi par le mélange parfait d'éléments modernes et d'anciens espaces de travail.
Cette propriété passionnante se trouve à seulement 10 minutes à pied de la gare SBB et du centre de Brugg. Elle est nichée entre la Habsburge...
Détails du bien
- Disponible à partir de
- 15.07.2024
- Surface habitable
- 251 m²
- Surface utilisable
- 251 m²



