Bureau à louer - Route De Chancy 59, 1213 Petit-Lancy
Pourquoi vous aimerez ce bien
Agencement flexible des pièces
630 m² d'espace vert
Excellente accessibilité
Organiser une visite
Réserver une visite avec Humbert aujourd'hui !
Bureaux à louer au cœur d'un environnement unique à lancy
SHIFT - Un environnement unique pour changer vos habitudes de travail
Idéalement situé à Lancy, dans un environnement dynamique, largement verdoyant et avec de nombreux services de proximité, SHIFT est l'adresse idéale pour optimiser votre confort de travail.
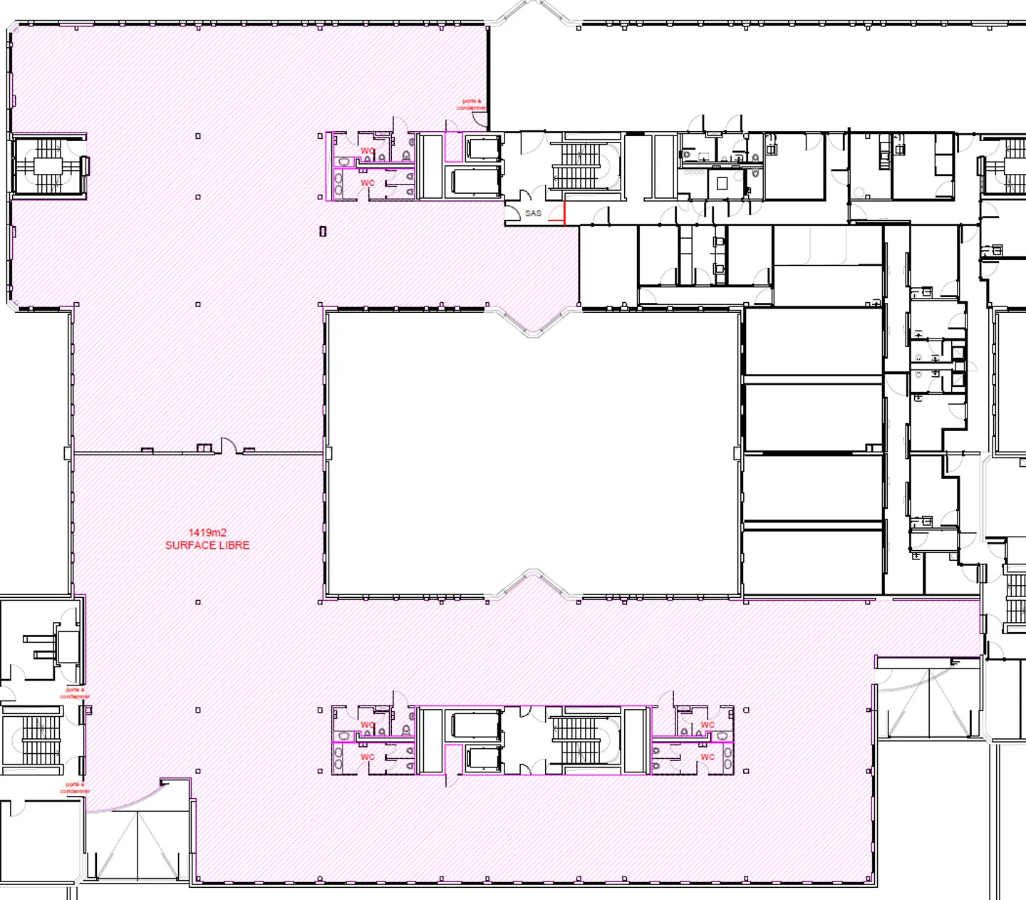
Caractéristiques des locaux
- Surfaces de 724 m2 au 1er étage, 1'419 m2 au 2ème étage et 580 m2 au 3ème étage
- Surfaces divisibles à partir de 320 m2
- Espaces personnalisables selon les besoins du locataire
- Éclairage optimal et technologie...
Détails du bien
- Disponible à partir de
- Sur accord
- Surface habitable
- 1419 m²
- Surface utilisable
- 1419 m²



