Commercial à louer - Industriestrasse 57, 6300 Zug
Pourquoi vous aimerez ce bien
Bureau et entrepôt flexibles
Infrastructure moderne
Excellente localisation près de l'A14
Organiser une visite
Réserver une visite avec Duss aujourd'hui !
1600 m2 d'espace commercial/bureau avec élévateur à marchandises et rampes
À Industriestrasse 57 à Zug, vous pouvez vous attendre à des espaces commerciaux et de bureau flexibles avec 1'600 m² de surface utile – idéal pour les entreprises ayant besoin de commerce, de production, de bureau, de logistique et/ou d'entreposage.
Le bien en un coup d'œil
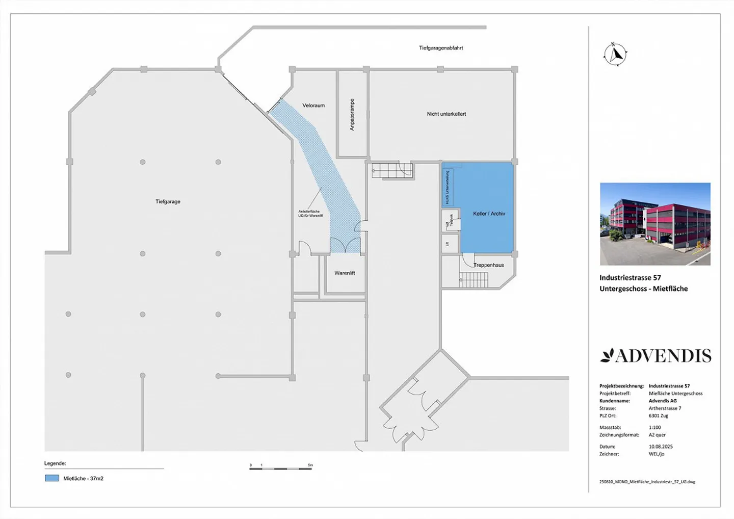
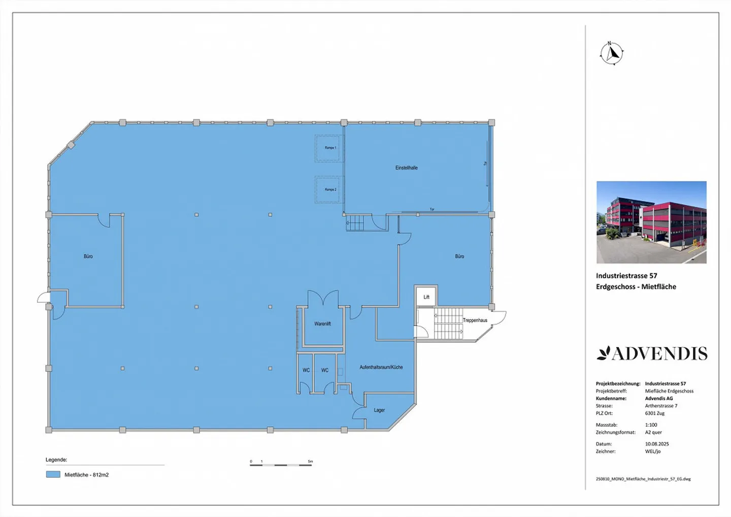
- Rez-de-chaussée : 812 m² d'espace commercial (y compris bureaux) avec porte sectionnelle, deux rampes de chargement hydrauliques couvertes à hauteur de camion
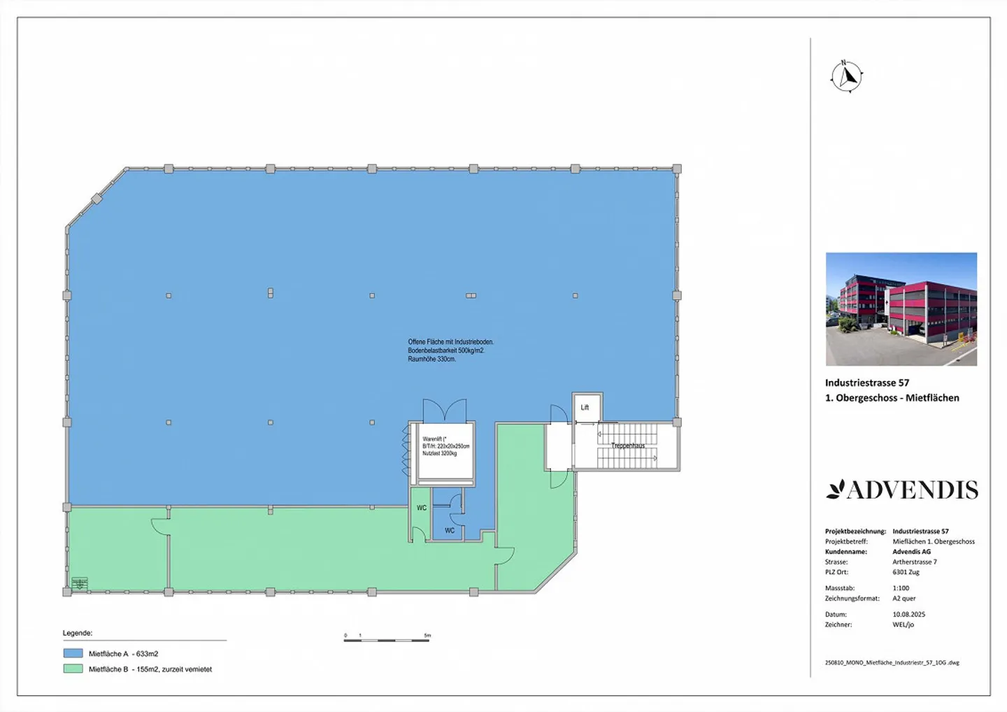
- 1er étage : 633 m² d'espace commercial + 155 m² d'espace de bure...
Détails du bien
- Disponible à partir de
- Sur accord



