Bureau à louer - Chemin De L' Etang 55, 1219 Châtelaine
Pourquoi vous aimerez ce bien
Aménagement de bureau sur mesure
Bâtiment lumineux et moderne
Accès facile aux transports
Organiser une visite
Réserver une visite aujourd'hui !
Bureau
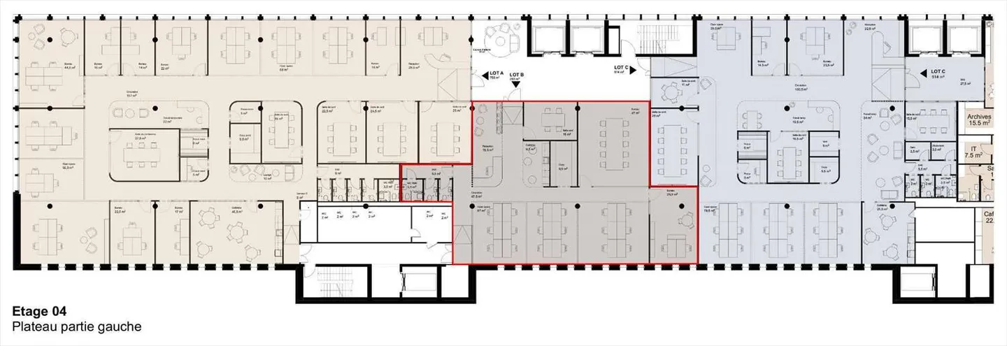
À louer – Bureaux bruts à aménager au Quartier de l'Étang
Découvrez ces bureaux bruts situés au 4? étage d'un bâtiment moderne et fonctionnel, au cœur du Quartier de l'Étang à Genève.
Idéal pour les entreprises à la recherche d'un espace modulable et évolutif, ce bien offre la possibilité d'un aménagement sur mesure, réalisé par le propriétaire moyennant un surloyer attractif.
Points forts :
- Bureaux bruts à aménager selon vos besoins
- Possibilité d'aménagement clé en main (avec surloyer)
- Bâtim...
Détails du bien
- Disponible à partir de
- Sur accord
- Surface habitable
- 283 m²



