Bureau à louer - Rue Du Stand 53, 1204 Genève
Pourquoi vous aimerez ce bien
Plafonds hauts et moulures
Transports publics pratiques
Petit balcon pour pauses
Organiser une visite
Réserver une visite avec Wincasa aujourd'hui !
Cet immeuble typiquement Genevois est situé dans un quartier très dynamique, à proximité immédiate des commerces et restaurants.
Au pied de l'immeuble, vous trouverez l'arrêt TPG Stand, et à quelques pas, la place Bel Air apportant une grande mobilité en transports communs.
De nombreuses places 2 roues sont à disposition immédiate et le parcage des voitures est également facile dans ce quartier.
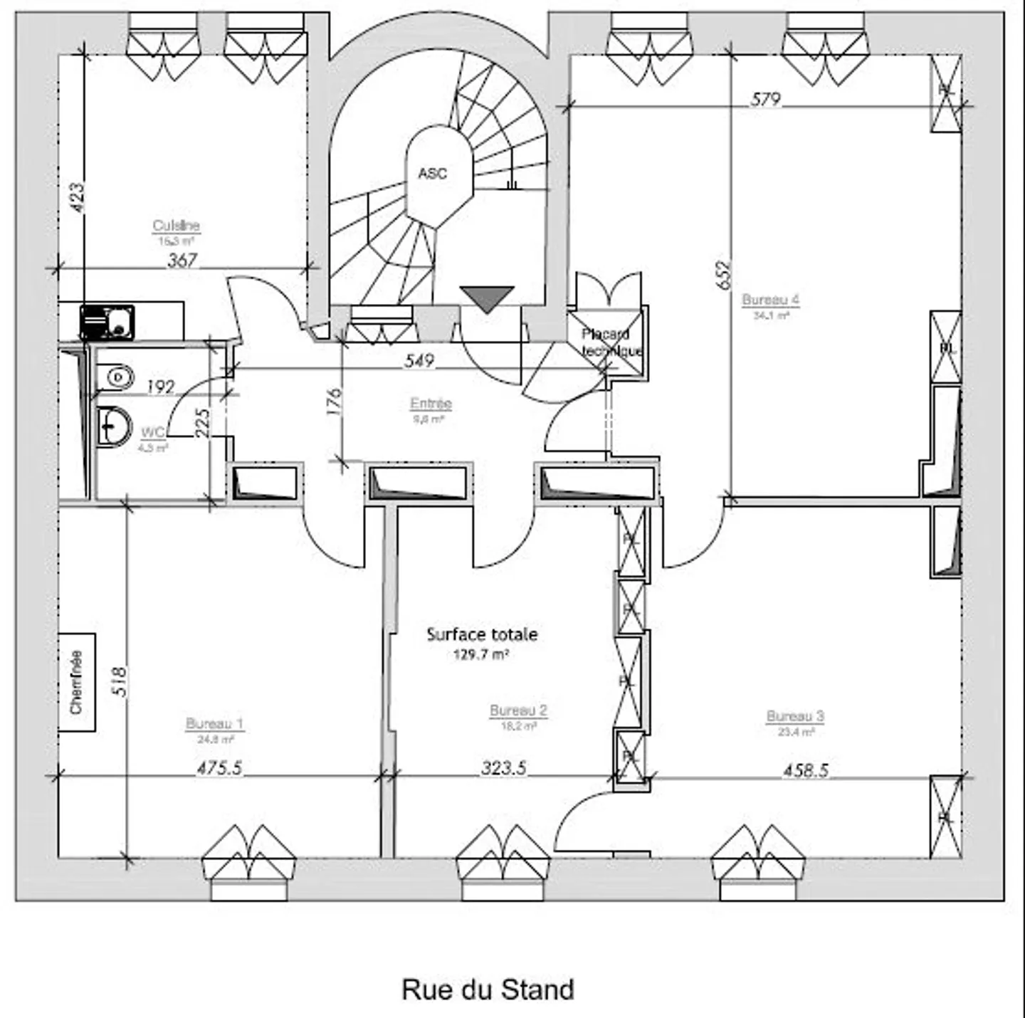
Nous vous proposons à la location une belle surface de bureaux récemment rénovée, située au 2e étage,...
Détails du bien
- Disponible à partir de
- Sur accord
- Année de construction
- 1908
- Surface habitable
- 129 m²
- Surface utilisable
- 129 m²



